Bénéficiez des services de nos partenaires locaux soigneusement sélectionnés
pour vous accompagner dans votre parcours d'achat immobilier

Appartement quatre pièces avec balcons à douvres la délivrande

— Douvres-La-Delivrande 14440 —
387 900 €
89 m² / 11 m²
4 pièces
parkingjardinascenseur

Nos partenaires locaux
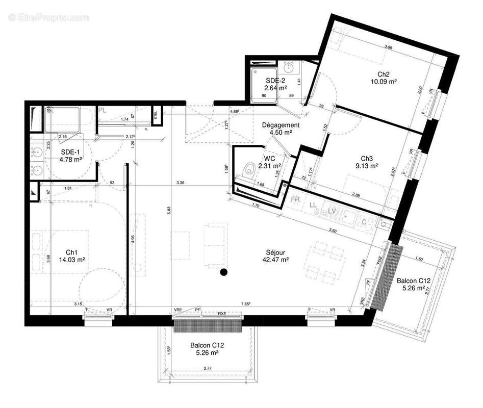
Prenez RDV pour une visite au "O6-26-77-69-7I" Le cabinet FOLLIOT vous propose à Douvres la Délivrande ce magnifique appartement de 88.93m² avec un BALCON de 10.52 m². FRAIS DE NOTAIRES REDUITS. Comprenant : entrée avec placard, pièce de vie avec cuisine ouverte de 42m² donnant sur deux balcons, trois chambres, deux salles d'eau, wc. Le chauffage est assuré par des radiateurs au gaz. En plus, vous bénéficierez de deux boxes fermés au sous-sol. La localisation est idéale, à proximité de plusieurs établissements scolaires tels que l'École primaire Marie Curie, le Lycée technologique privé Notre-Dame de Nazareth, et le Collège Clément Marot. Images non contractuels. Ne manquez pas cette opportunité, contactez l'agence FOLLIOT pour plus d'informations. ESTIMATION GRATUITE ET RAPIDE DE VOTRE BIEN. Les informations sur les risques auxquels ce bien est exposé sont disponibles sur le site Géorisques : www. georisques.gouv.fr" Pierrick BOURGOIN (EI) Agent Commercial - Numéro RSAC : 481 745 107 - Caen.
Voir plus

Référence: 1734
Honoraires à la charge du vendeur.
Barème des honoraires

Prêt immobilier

Vous souhaitez connaître votre capacité d’emprunt et trouver le meilleur crédit immobilier ?
Réaliser une simulation gratuite

Appartement à DOUVRES-LA-DELIVRANDE
Appartement à DOUVRES-LA-DELIVRANDE
Appartement à DOUVRES-LA-DELIVRANDE
Appartement à DOUVRES-LA-DELIVRANDE
Appartement à DOUVRES-LA-DELIVRANDE
Ce site est protégé par reCAPTCHA la Politique de confidentialité et les Conditions d’utilisation de Google s’appliquent.
Obtenir un prêt immobilier au meilleur taux ?

En poursuivant votre navigation sans modifier vos paramètres, vous acceptez l'utilisation de cookies susceptibles de réaliser des statistiques de visite. Cliquez ici pour plus d'informations