Bénéficiez des services de nos partenaires locaux soigneusement sélectionnés
pour vous accompagner dans votre parcours d'achat immobilier

Gujan mestras

— Gujan-Mestras 33470 —
140 000 €
28 m²
1 pièce
parkingbalcon/terrasseascenseur

Nos partenaires locaux
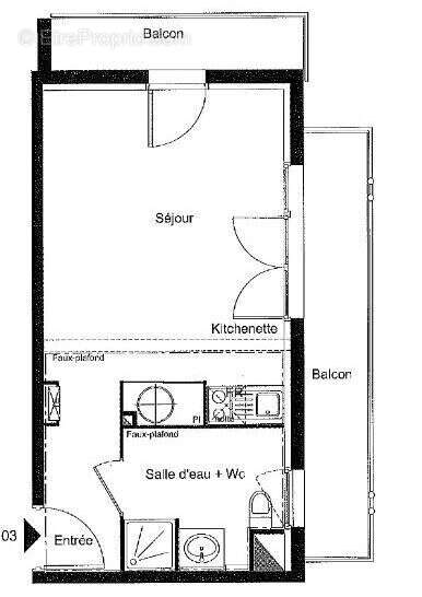
A Gujan Mestras, trés proche gare, commerces, un appartement type Studio d'environ 27 m² avec deux Balcons et un parking en sous sol. L'appartement possède du potentiel: une entrée, une piece d'eau avec wc et fenetre et une pièce à vivre avec cuisine type kitchenette: l'ensemble est lumineux. Immeuble bien entretenu, calme et avec adresse idéale. Copropriété de 462 lots - dont 173 lots habitation. (Pas de procédure en cours). Charges annuelles : 872 euros.

Référence: 7018
Bien en copropriété. Nombre de lots : 462. Charges de copropriété : 872 €.
Honoraires à la charge du vendeur.
Barème des honoraires
DPE
A
B
C
D
E
F
G
GES
A
B
C
D
E
F
G

Prêt immobilier

Vous souhaitez connaître votre capacité d’emprunt et trouver le meilleur crédit immobilier ?
Réaliser une simulation gratuite

Appartement à GUJAN-MESTRAS
Appartement à GUJAN-MESTRAS
Appartement à GUJAN-MESTRAS
Appartement à GUJAN-MESTRAS
Ce site est protégé par reCAPTCHA la Politique de confidentialité et les Conditions d’utilisation de Google s’appliquent.
Obtenir un prêt immobilier au meilleur taux ?

En poursuivant votre navigation sans modifier vos paramètres, vous acceptez l'utilisation de cookies susceptibles de réaliser des statistiques de visite. Cliquez ici pour plus d'informations