Bénéficiez des services de nos partenaires locaux soigneusement sélectionnés
pour vous accompagner dans votre parcours d'achat immobilier

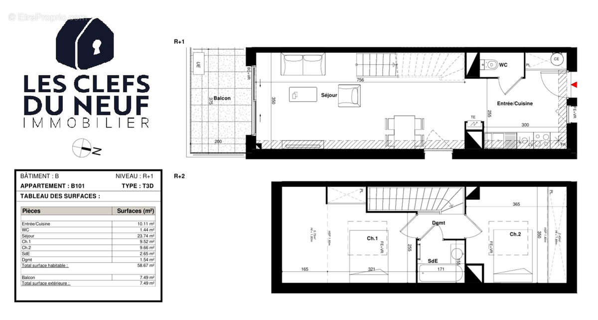
Appartement 3 pièces de 60m² + balcon + parking ! lardenne

— Toulouse 31100 —
235 900 €
60 m²
3 pièces

Nos partenaires locaux
LANCEMENT COMMERCIALE ! [ résidence principale + conditions de revenus ] Appartement T3 duplex en dernier étage de 59m² avec 9m² de balcon sans vis-à-vis exposé SUD dans une petite résidence sécurisée de 15 logements située dans un quartier résidentiel calme et préservé de LARDENNE. -Grand séjour lumineux ouvert sur cuisine, le tout donnant accès à cet agréable balcon. -2 chambres à l'étage avec placards. -Salle de bain à l'étage. -WC séparé. -Place de parking en sous-sol avec accès sécurisé. -Belles prestations à découvrir sur place... Maxime FONTENELLE LES CLEFS DU NEUF
Voir plus

Barème des honoraires

Prêt immobilier

Vous souhaitez connaître votre capacité d’emprunt et trouver le meilleur crédit immobilier ?
Réaliser une simulation gratuite

Appartement à TOULOUSE
Appartement à TOULOUSE
Appartement à TOULOUSE
Appartement à TOULOUSE
Appartement à TOULOUSE
Ce site est protégé par reCAPTCHA la Politique de confidentialité et les Conditions d’utilisation de Google s’appliquent.
Obtenir un prêt immobilier au meilleur taux ?

En poursuivant votre navigation sans modifier vos paramètres, vous acceptez l'utilisation de cookies susceptibles de réaliser des statistiques de visite. Cliquez ici pour plus d'informations