Bénéficiez des services de nos partenaires locaux soigneusement sélectionnés
pour vous accompagner dans votre parcours d'achat immobilier

Appartement 40m² à nimes

— Nimes 30000 —
178 031 €
40 m²
2 pièces
balcon/terrasseascenseur

Nos partenaires locaux
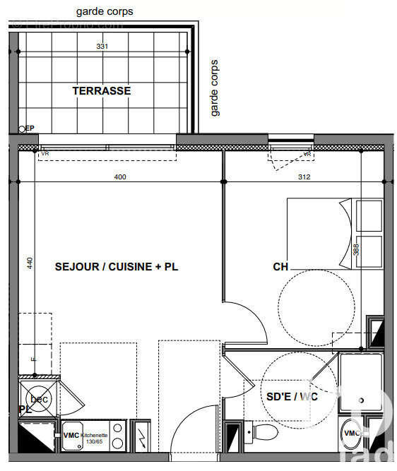
Iad France - Kevin Alibert vous propose : NOUVEAU APPARTEMENT T2 AVEC TERRASSE + PARKING
Découvrez ce magnifique appartement T2 situé en plein cOEur de Nîmes, D'une surface totale de 40 m², cet appartement offre un cadre de vie moderne et confortable.

L'appartement se compose d'une chambre lumineuse, d'une salle de bain moderne et d'un beau salon avec espace salle à manger. La cuisine est à aménager selon vos goûts et besoins. La pièce maîtresse de ce bien est sans aucun doute sa terrasse.

Situé au 1er étage surélevé (équivalent second) d'un immeuble de 4 niveaux construit en 2025. L'immeuble est équipé d'un ascenseur, sécurisée avec un digicode et interphone.

Cet appartement est parfaitement exposé à l'ouest, offrant luminosité tout au long de la journée. Commerces, transports en commun et points d'intérêt accessibles.

La presente annonce immobiliere vise 2 lots situés dans une copropriété de 114 lots au total et ne faisant l'objet d'aucune procédure en cours citée à l'article L. 721-1 du code de la construction et de l'habitation. Montant moyen mensuel de charges déclaré par le vendeur : 60¤ par mois (soit 720 ¤ annuel). Honoraires d'agence à la charge du vendeur.
Bien non soumis au DPE. Les informations sur les risques auxquels ce bien est exposé, y compris l'obligation légale de débroussaillement, sont disponibles sur le site Géorisques : http://www.georisques.gouv.fr.
La présente annonce immobilière a été rédigée sous la responsabilité éditoriale de M Kevin Alibert mandataire indépendant en immobilier (sans détention de fonds), agent commercial de la SAS I@D France immatriculé au RSAC de NImes sous le numéro 919817791, titulaire de la carte de démarchage immobilier pour le compte de la société I@D France SAS.
Informations LOI ALUR :
Soumis au régime de copropriété.
Nombre de lots : 114.
Quote part annuelle(moyenne) : 720 euros.
Honoraires charge vendeur. (gedeon_6727_31522416)
Voir plus

Référence: 1795008
Bien en copropriété. Nombre de lots : 114. Charges de copropriété : 720 €.
Honoraires à la charge du vendeur.

Prêt immobilier

Vous souhaitez connaître votre capacité d’emprunt et trouver le meilleur crédit immobilier ?
Réaliser une simulation gratuite

Photo 1 - Appartement à NIMES
Photo 1
Photo 2 - Appartement à NIMES
Photo 2
Photo 3 - Appartement à NIMES
Photo 3
Photo 4 - Appartement à NIMES
Photo 4
Photo 5 - Appartement à NIMES
Photo 5
Photo 6 - Appartement à NIMES
Photo 6
Ce site est protégé par reCAPTCHA la Politique de confidentialité et les Conditions d’utilisation de Google s’appliquent.
Obtenir un prêt immobilier au meilleur taux ?

En poursuivant votre navigation sans modifier vos paramètres, vous acceptez l'utilisation de cookies susceptibles de réaliser des statistiques de visite. Cliquez ici pour plus d'informations