Charmant f2 dans immeuble de caractère proche gare et écoles

— Saint-Brice-Sous-Foret 95350 —
179 000 €
43 m²
2 pièces
parking

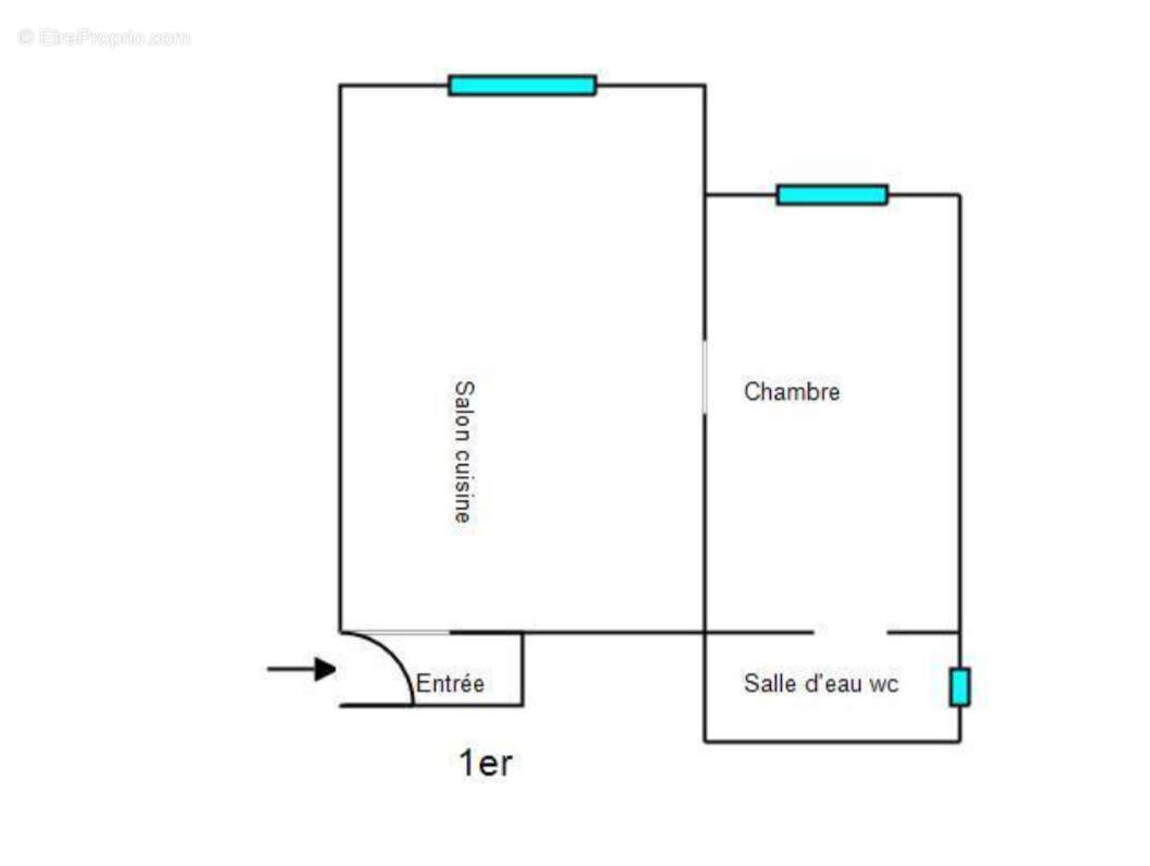
Situé à Saint-Brice-sous-Forêt, dans un immeuble ancien plein de charme, ce 2 pièces de 43 m2 offre un cadre de vie agréable et pratique.
À seulement 14 minutes à pied de la gare, il bénéficie d’un emplacement stratégique, à proximité immédiate des écoles Jean de La Fontaine et Jean Charron (maternelle et primaire).
L’appartement se compose d’un séjour lumineux de 26 m2 avec parquet massif, d’une chambre confortable de 11 m2, d’une salle d’eau et d’un espace cuisine à aménager. Actuellement non installée, la cuisine trouvera parfaitement sa place dans la pièce de vie sous forme d’une cuisine ouverte de type américaine, idéale pour créer un espace de vie convivial et moderne.
Les plus : charme de l’ancien, parquet massif, belle hauteur sous plafond, environnement calme, petite copropriété bien entretenue.
Une belle opportunité à personnaliser selon vos envies !
Rubrique financière :


• Taxe foncière : 870 € / an
• Charges MENSUELS de copropriété : 123,15 €

- Agent immobilier spécialisé à Saint-Brice-sous-Forêt et dans la Vallée de Montmorency, je vous propose une estimation offerte de votre bien.
Voir plus

Référence: 1500
Bien en copropriété. Nombre de lots : 17. Charges de copropriété : 1478 €.
Honoraires à la charge du vendeur.
Barème des honoraires
DPE
A
B
C
D
E
F
G
GES
A
B
C
D
E
F
G

Prêt immobilier

Vous souhaitez connaître votre capacité d’emprunt et trouver le meilleur crédit immobilier ?
Réaliser une simulation gratuite

Appartement à SAINT-BRICE-SOUS-FORET
Appartement à SAINT-BRICE-SOUS-FORET
Appartement à SAINT-BRICE-SOUS-FORET
Appartement à SAINT-BRICE-SOUS-FORET
Appartement à SAINT-BRICE-SOUS-FORET
Appartement à SAINT-BRICE-SOUS-FORET
Appartement à SAINT-BRICE-SOUS-FORET
Ce site est protégé par reCAPTCHA la Politique de confidentialité et les Conditions d’utilisation de Google s’appliquent.
Obtenir un prêt immobilier au meilleur taux ?

En poursuivant votre navigation sans modifier vos paramètres, vous acceptez l'utilisation de cookies susceptibles de réaliser des statistiques de visite. Cliquez ici pour plus d'informations