Bénéficiez des services de nos partenaires locaux soigneusement sélectionnés
pour vous accompagner dans votre parcours d'achat immobilier

Maison de ville 180 m2 5 chambres + bureau verrières (86

— Verrieres 86410 —
205 000 €
180 m² / 1 100 m²
7 pièces
parking

Nos partenaires locaux
Située dans la commune de Verrières (86410), à quelques minutes de Vivonne et de Poitiers, cette spacieuse maison de ville d'environ 180 m2 offre de nombreuses possibilités pour une grande famille ou un projet d'aménagement sur mesure.

Le rez-de-chaussée se compose d'une pièce de vie lumineuse avec une cuisine aménagée et équipée, ouverte sur une terrasse via une porte-fenêtre. Une première chambre y est installée, ainsi qu'un bureau ,pouvant faire office de seconde chambre, ou d'agrandissement pour un salon, une salle d'eau avec WC, et un accès direct à un grand garage de plus de 35 m2.

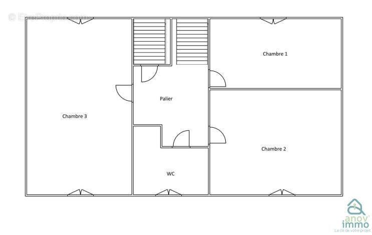
Au premier étage, la maison dispose de trois chambres confortables, ainsi qu'une seconde salle d'eau avec WC.

Le deuxième niveau, sous combles, comprend deux chambres supplémentaires de belle taille, ainsi qu'un espace attenant encore aménageable, idéal pour créer deux autres chambres ou une vaste suite parentale.

L'ensemble est équipé de fenêtres en double vitrage, et la maison est reliée au tout-à-l'égout. Le chauffage est assuré par un système mixte bois et fioul. Des travaux de rafraîchissement sont à prévoir pour mettre le bien à votre goût.

Située dans un environnement calme et pratique, la maison bénéficie de la proximité immédiate des écoles, d'une boulangerie, d'un bureau de poste et des commodités de Verrières. La gare SNCF de Vivonne, les supermarchés et l'accès à la N10 se trouvent à moins de 10 minutes en voiture. Le centre-ville de Poitiers est accessible en 20 minutes.

Un bien rare sur le secteur, à fort potentiel.
- Annonce rédigée et publiée par un Agent Mandataire -
Voir plus

Référence: 35_GMVMA410000896
Honoraires à la charge du vendeur.
DPE
A
B
C
D
E
F
G
GES
A
B
C
D
E
F
G

Prêt immobilier

Vous souhaitez connaître votre capacité d’emprunt et trouver le meilleur crédit immobilier ?
Réaliser une simulation gratuite

Maison à VERRIERES
Maison à VERRIERES
Maison à VERRIERES
Maison à VERRIERES
Maison à VERRIERES
Maison à VERRIERES
Maison à VERRIERES
Maison à VERRIERES
Maison à VERRIERES
Maison à VERRIERES
Maison à VERRIERES
Maison à VERRIERES
Maison à VERRIERES
Maison à VERRIERES
Maison à VERRIERES
Maison à VERRIERES
Maison à VERRIERES
Maison à VERRIERES
Maison à VERRIERES
Maison à VERRIERES
Maison à VERRIERES
Maison à VERRIERES
Maison à VERRIERES
Maison à VERRIERES
Maison à VERRIERES
Maison à VERRIERES
Maison à VERRIERES
Maison à VERRIERES
Maison à VERRIERES
Maison à VERRIERES
Ce site est protégé par reCAPTCHA la Politique de confidentialité et les Conditions d’utilisation de Google s’appliquent.
Obtenir un prêt immobilier au meilleur taux ?

En poursuivant votre navigation sans modifier vos paramètres, vous acceptez l'utilisation de cookies susceptibles de réaliser des statistiques de visite. Cliquez ici pour plus d'informations