Bénéficiez des services de nos partenaires locaux soigneusement sélectionnés
pour vous accompagner dans votre parcours d'achat immobilier

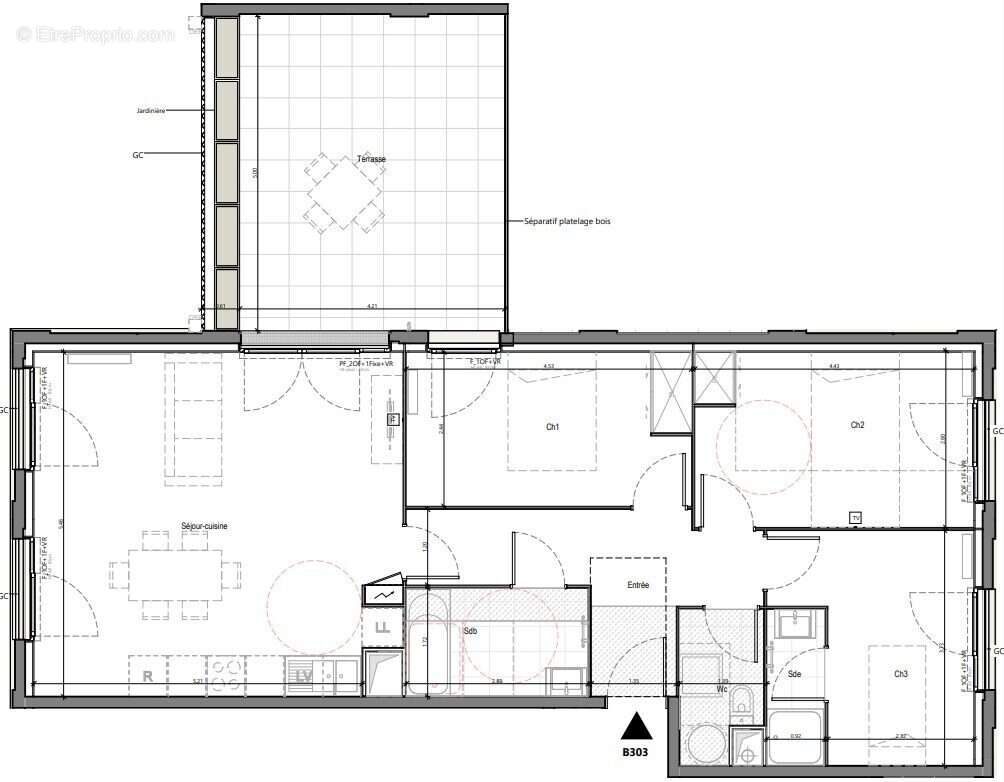
Appartement 84m² à bruges

— Bruges 33520 —
346 000 €
84 m²
4 pièces
parkingbalcon/terrasseascenseuraccès handicapé

Nos partenaires locaux
Sous compromis : VOTRE APPARTEMENT ET SA GRANDE TERRASSE N'ATTENDS PLUS QUE VOUS

À Bruges, à quelques minutes seulement du centre-ville et de toutes les commodités, découvrez une résidence où nature et quotidien s'accordent harmonieusement.

Pensée comme un havre de verdure, la résidence s'implante dans un écrin paysager soigneusement repensé. Une allée serpente à travers les bosquets et plantes tapissantes, menant à une clairière ombragée et aménagée pour la détente en famille ou entre voisins. Ce jardin vivant, protégé et pédagogique, met en valeur la biodiversité locale grâce à des panneaux explicatifs sur la faune et la flore. En façade, les généreux massifs arbustifs et plantes grimpantes prolongent la voie verte et le futur square public jusqu'au pied des immeubles, intégrant pleinement la résidence dans son environnement naturel et urbain.

La situation est idéale : le tramway, la gare et les transports en commun se trouvent à moins de 5 minutes à pied. Le centre-ville de Bruges, quant à lui, est accessible en seulement 10 minutes de marche. Les commerces et services essentiels, eux, sont rapidement accessibles pour vous garantir un quotidien pratique et confortable.

Au dernier étage ce superbe appartement T4 de 84 m² se dévoile à travers une pièce de vie de 31 m² orientée Sud-Ouest, parfaite pour vos moments de partage, et prolongée par une terrasse végétalisée de24 m², véritable oasis privative pour profiter du plein air en toute intimité.

Le coin nuit se compose d'une suite parentale avec salle d'eau privative, de deux chambres spacieuses dotées de placards intégrés, d'une grande salle de bain moderne ainsi que d'un WC indépendant, pour un confort familial optimal.

Conforme à la réglementation RE 2020, cet appartement vous garantit une performance énergétique de premier ordre, gage d'économies durables et de bien-être au quotidien.

Une place de parking (en sus 15 000€) complète ce bien parfaitement pensé pour vous et votre famille.

- Aucun travaux à prévoir
- Frais de Notaires Réduits
- Garanties
- RE 2020
- ...

VOTRE APPARTEMENT ET SA GRANDE TERRASSE N'ATTENDS PLUS QUE VOUS



Honoraires à la charge du vendeur. Dans une copropriété de 58 lots. Aucune procédure n'est en cours. DPE en cours. Les informations sur les risques auxquels ce bien est exposé sont disponibles sur le site Géorisques : georisques.gouv.fr.

Votre conseiller RH Patrimoine : Maxime HERVE
Agent commercial (Entreprise individuelle)
RSAC 133095555 J
RCP 13309666 J
Voir plus

Référence: VA3081-RHPATRI
Bien en copropriété. Nombre de lots : 58.
Honoraires à la charge du vendeur.
Barème des honoraires

Prêt immobilier

Vous souhaitez connaître votre capacité d’emprunt et trouver le meilleur crédit immobilier ?
Réaliser une simulation gratuite

Appartement à BRUGES
Appartement à BRUGES
Appartement à BRUGES
Ce site est protégé par reCAPTCHA la Politique de confidentialité et les Conditions d’utilisation de Google s’appliquent.
Obtenir un prêt immobilier au meilleur taux ?

En poursuivant votre navigation sans modifier vos paramètres, vous acceptez l'utilisation de cookies susceptibles de réaliser des statistiques de visite. Cliquez ici pour plus d'informations