Bénéficiez des services de nos partenaires locaux soigneusement sélectionnés
pour vous accompagner dans votre parcours d'achat immobilier

À vendre maison ancienne 114 m2 à rebourseaux, proche d’héry et d’auxerre

— Cheu 89600 —
129 000 €
114 m² / 752 m²
4 pièces
parkingjardin

Nos partenaires locaux
Située à 7 minutes au nord d’Héry et à environ 20 minutes d’Auxerre, cette maison ancienne à usage d’habitation offre une surface habitable de 114 m2, partiellement rénovée, avec de beaux volumes et un fort potentiel d'aménagement.
Rez-de-chaussée :


Entrée


Cuisine aménagée


Séjour


Une chambre


Couloir


Salle de bains


WC


Grange attenante de 46 m2


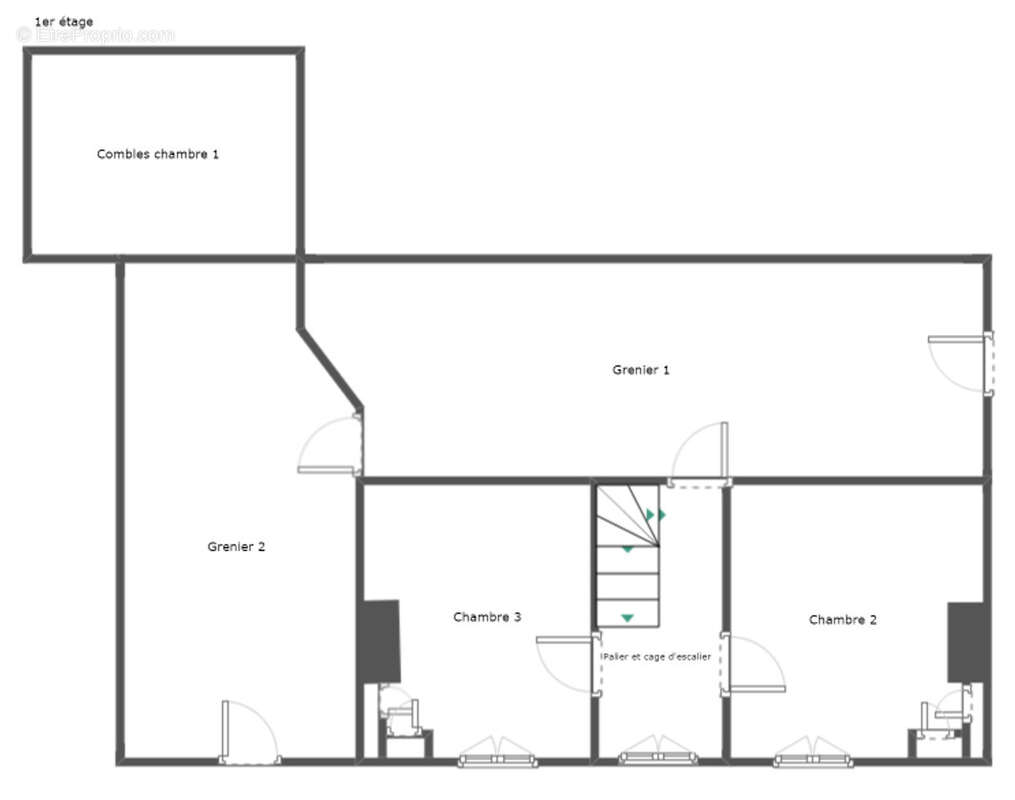
Étage :


Palier


Deux chambres


WC


Grenier aménageable d’environ 50 m2


Extérieurs :


Préau attenant à la maison


Cave sous l’habitation


Terrain clos et arboré, agréable et bien entretenu


Les atouts :


Maison raccordée au tout-à-l’égout


Toiture récente


Bel espace extérieur


Potentiel d’agrandissement avec la grange et le grenier


Idéal pour une résidence principale ou un projet de rénovation dans un environnement calme, tout en restant proche des commodités.
Voir plus

Référence: 2153
Honoraires à la charge du vendeur.
DPE
A
B
C
D
E
F
G
GES
A
B
C
D
E
F
G

Prêt immobilier

Vous souhaitez connaître votre capacité d’emprunt et trouver le meilleur crédit immobilier ?
Réaliser une simulation gratuite

Maison à CHEU
Maison à CHEU
Maison à CHEU
Maison à CHEU
Maison à CHEU
Maison à CHEU
Maison à CHEU
Maison à CHEU
Maison à CHEU
Maison à CHEU
Maison à CHEU
Maison à CHEU
Maison à CHEU
Maison à CHEU
Maison à CHEU
Maison à CHEU
Ce site est protégé par reCAPTCHA la Politique de confidentialité et les Conditions d’utilisation de Google s’appliquent.
Obtenir un prêt immobilier au meilleur taux ?

En poursuivant votre navigation sans modifier vos paramètres, vous acceptez l'utilisation de cookies susceptibles de réaliser des statistiques de visite. Cliquez ici pour plus d'informations