Terrain 305m² à saint-benoit

— Saint-Benoit 97470 —
96 000 €
305 m²

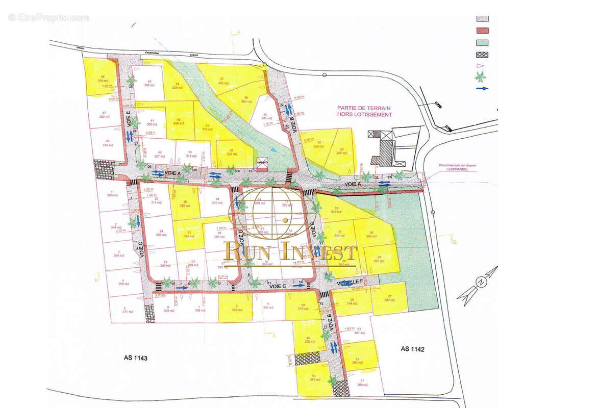
À Saint Benoit - Entrée Nord de la VilleLOTISSEMENT ACHEVE et ACTABLE IMMEDIATEMENT.(Photos non contractuelles prises au début du projet)L'Agence Run Invest vous propose de découvrir les dernières disponibilités de ce lotissement.Bordé de Champs de canne, le lotissement 'Bleu Conardel' n'est qu'à 2 minutes de la Gare routière et des axes routiers.On est préservé de l'agitation de la ville.Les terrains sont livrés viabilisés, avec un muret de moellon en base.Les terrains disponibles sont d'une superficie comprise entre 302 m² et 424 m²Une visite vous permettra de découvrir tout le potentiel du site.Disponibilités immédiates sur les lots :-31 : 305 m² à 96 000EUR-32 : 320 m² à 100 500EUR-42 : 425 m² à 132 000EUR-43 : 375 m² à 117 000EUROn vous attend pour visiter.Nos prix s'entendant Frais d'agence inclus (charge vendeur)Mandat no 4313 - Agence RUN INVEST IMMOBILIER [Coordonnées masquées].Informations LOI ALUR : Honoraires charge vendeur. (gedeon_90742_31519279)
Voir plus

Référence: AG650-1599
Honoraires à la charge du vendeur.
GES
A
B
C
D
E
F
G

Prêt immobilier

Vous souhaitez connaître votre capacité d’emprunt et trouver le meilleur crédit immobilier ?
Réaliser une simulation gratuite

Photo 1 - Terrain à SAINT-BENOIT
Photo 1
Photo 2 - Terrain à SAINT-BENOIT
Photo 2
Photo 3 - Terrain à SAINT-BENOIT
Photo 3
Photo 4 - Terrain à SAINT-BENOIT
Photo 4
Photo 5 - Terrain à SAINT-BENOIT
Photo 5
Ce site est protégé par reCAPTCHA la Politique de confidentialité et les Conditions d’utilisation de Google s’appliquent.
Obtenir un prêt immobilier au meilleur taux ?

En poursuivant votre navigation sans modifier vos paramètres, vous acceptez l'utilisation de cookies susceptibles de réaliser des statistiques de visite. Cliquez ici pour plus d'informations