Longère rénovée

— Arradon 56610 —
901 352 €
137 m² / 342 m²
4 pièces
jardin

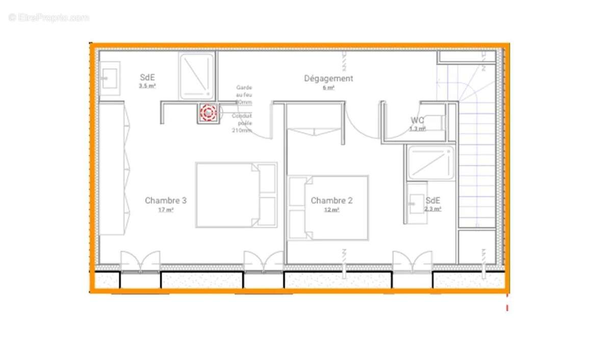
A deux pas de la plage et des sentiers côtiers du Golfe du Morbihan, IMMOBILIER MER ET CAMPAGNE vous présente cette charmante maison entièrement rénovée avec des matériaux de qualités d'une surface d'environ 129m² habitables sur son terrain indépendant de 342m².

Elle se compose au rez-de-chaussée d'une entrée, une pièce de vie, une salle à manger, une cuisine ouverte, une suite parentale avec chambre, dressing et salle d'eau, un cellier et un patio. A l'étage 2 chambres avec salle d'eau.

Vous apprécierez l'emplacement, la qualité de la rénovation alliant le charme des vielles pierres et le confort d'une maison neuve.

Livraison 2eme semestre 2026

IMMOBILIER MER ET CAMPAGNE 12 place de l'église ARRADON
Voir plus

Référence: 2109

Prêt immobilier

Vous souhaitez connaître votre capacité d’emprunt et trouver le meilleur crédit immobilier ?
Réaliser une simulation gratuite

Maison à ARRADON
Maison à ARRADON
Maison à ARRADON
Ce site est protégé par reCAPTCHA la Politique de confidentialité et les Conditions d’utilisation de Google s’appliquent.
Obtenir un prêt immobilier au meilleur taux ?

En poursuivant votre navigation sans modifier vos paramètres, vous acceptez l'utilisation de cookies susceptibles de réaliser des statistiques de visite. Cliquez ici pour plus d'informations