Bénéficiez des services de nos partenaires locaux soigneusement sélectionnés
pour vous accompagner dans votre parcours d'achat immobilier

Paris 10 - rue du chateau landon

— Paris-10e 75010 —
370 000 €
45 m²
3 pièces

Nos partenaires locaux
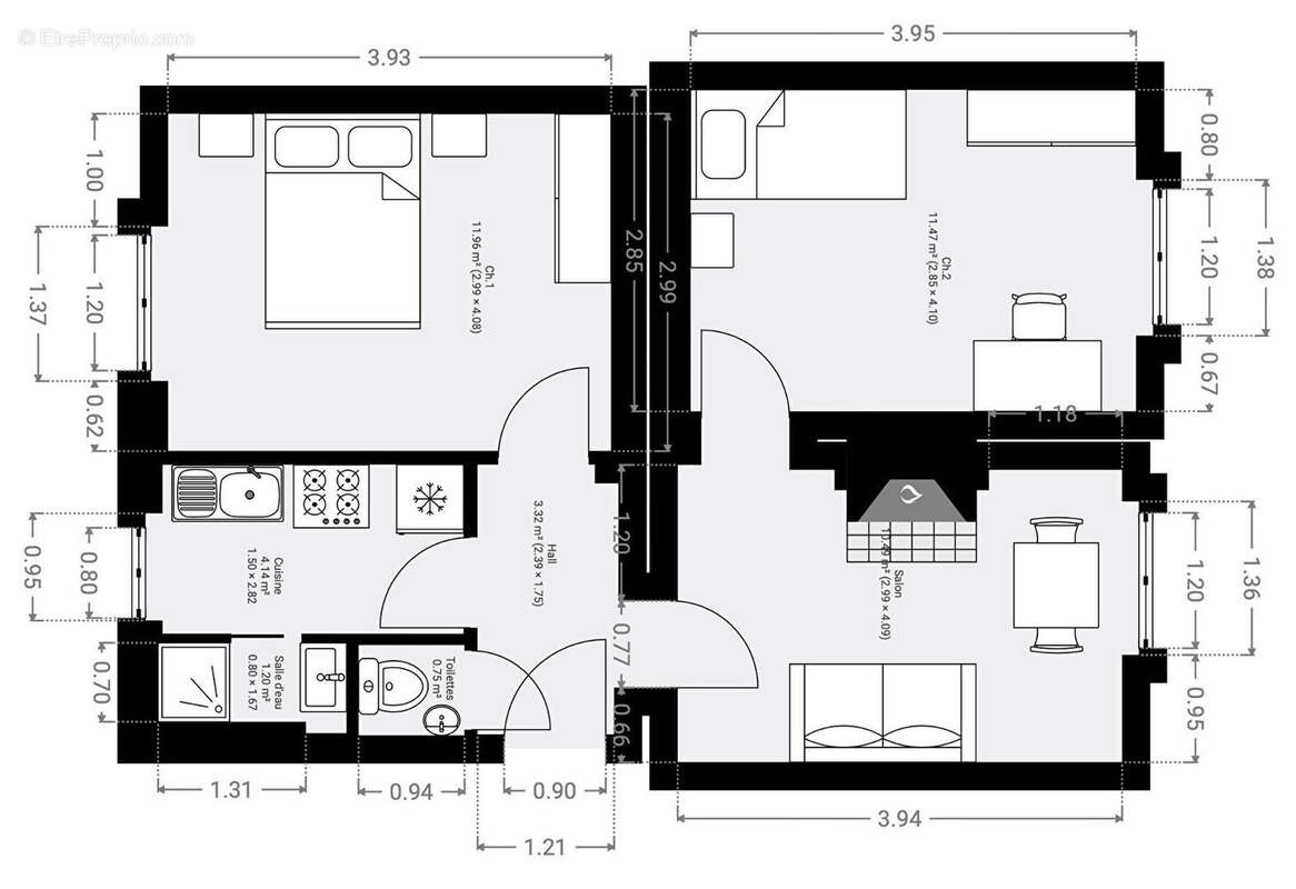
Votre agence FREDELION vous présente en exclusivité ce 3 pièces de 44 m2 (43,50m2 Loi carrez et 44.88m2) au sol situé au rez-de-chaussée d'une copropriété très bien entretenue. Le bien se compose de deux belles chambres, un salon, une cuisine, une salle d'eau et un WC séparé. Cet appartement rénové récemment a conservé tout le charme de l'ancien et est en excellent état. Professions libérales autorisées dans la copropriété. Une cave complète ce bien Copropriété de 96 lots (Pas de procédure en cours). Charges annuelles : 1800 euros.
Voir plus

Bien en copropriété. Nombre de lots : 96. Charges de copropriété : 1800 €.
Honoraires à la charge du vendeur.
DPE
A
B
C
D
E
F
G
GES
A
B
C
D
E
F
G

Prêt immobilier

Vous souhaitez connaître votre capacité d’emprunt et trouver le meilleur crédit immobilier ?
Réaliser une simulation gratuite

Commerce à PARIS-10E
Commerce à PARIS-10E
Commerce à PARIS-10E
Commerce à PARIS-10E
Commerce à PARIS-10E
Commerce à PARIS-10E
Commerce à PARIS-10E
Commerce à PARIS-10E
Ce site est protégé par reCAPTCHA la Politique de confidentialité et les Conditions d’utilisation de Google s’appliquent.
Obtenir un prêt immobilier au meilleur taux ?

En poursuivant votre navigation sans modifier vos paramètres, vous acceptez l'utilisation de cookies susceptibles de réaliser des statistiques de visite. Cliquez ici pour plus d'informations