Appartement 60m² à decines-charpieu

— Decines-Charpieu 69150 —
223 500 €
60 m²
3 pièces
ascenseur

Iad France - Valeran Troccon vous propose : Décines-Charpieu Centre - T3 de 60 m² avec terrasse et box - 4ème et dernier étage

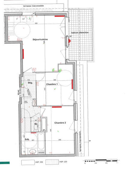
Situé en plein centre de Décines-Charpieu, au sein d'une résidence récente (2012) avec ascenseur, cet appartement T3 de 60 m² se trouve au 4e et dernier étage.

Il se compose d'une pièce de vie de 24 m² avec cuisine ouverte, d'une salle de bains de 6 m², de WC séparés, ainsi que de deux chambres de 12 m² chacune. Les menuiseries sont en double vitrage PVC et le chauffage est assuré par une installation collective au gaz.

L'atout principal de ce bien : une agréable terrasse de 10 m², exposée EST avec une vue dégagée.
Un grand box fermé et sécurisé de 17 m² en sous-sol complète ce bien.

Proximité immédiate des commerces, des transports (à seulement 100 m du Tramway T3) et des écoles.

Envies d'en savoir plus ? Contactez-moi pour une visite !

La presente annonce immobiliere vise 2 lots situés dans une copropriété de 110 lots au total et ne faisant l'objet d'aucune procédure en cours citée à l'article L. 721-1 du code de la construction et de l'habitation. Montant moyen mensuel de charges déclaré par le vendeur : 207.36¤ par mois (soit 2488.3 ¤ annuel). Honoraires d'agence à la charge du vendeur.
Information d'affichage énergétique sur ce bien : classe ENERGIE C indice 143 et classe CLIMAT C indice 27. Les informations sur les risques auxquels ce bien est exposé, y compris l'obligation légale de débroussaillement, sont disponibles sur le site Géorisques : http://www.georisques.gouv.fr.
La présente annonce immobilière a été rédigée sous la responsabilité éditoriale de M Valeran Troccon mandataire indépendant en immobilier (sans détention de fonds), agent commercial de la SAS I@D France immatriculé au RSAC de LYON sous le numéro 952678712, titulaire de la carte de démarchage immobilier pour le compte de la société I@D France SAS.
Informations LOI ALUR :
Soumis au régime de copropriété.
Nombre de lots : 110.
Quote part annuelle(moyenne) : 2488.3 euros.
Honoraires charge vendeur. (gedeon_6727_31529613)
Voir plus

Référence: 1796095
Bien en copropriété. Nombre de lots : 110. Charges de copropriété : 2488 €.
Honoraires à la charge du vendeur.
DPE
A
B
C
D
E
F
G
GES
A
B
C
D
E
F
G

Prêt immobilier

Vous souhaitez connaître votre capacité d’emprunt et trouver le meilleur crédit immobilier ?
Réaliser une simulation gratuite

Photo 1 - Appartement à DECINES-CHARPIEU
Photo 1
Photo 2 - Appartement à DECINES-CHARPIEU
Photo 2
Photo 3 - Appartement à DECINES-CHARPIEU
Photo 3
Photo 4 - Appartement à DECINES-CHARPIEU
Photo 4
Photo 5 - Appartement à DECINES-CHARPIEU
Photo 5
Photo 6 - Appartement à DECINES-CHARPIEU
Photo 6
Photo 7 - Appartement à DECINES-CHARPIEU
Photo 7
Photo 8 - Appartement à DECINES-CHARPIEU
Photo 8
Photo 9 - Appartement à DECINES-CHARPIEU
Photo 9
Ce site est protégé par reCAPTCHA la Politique de confidentialité et les Conditions d’utilisation de Google s’appliquent.
Obtenir un prêt immobilier au meilleur taux ?

En poursuivant votre navigation sans modifier vos paramètres, vous acceptez l'utilisation de cookies susceptibles de réaliser des statistiques de visite. Cliquez ici pour plus d'informations