Bénéficiez des services de nos partenaires locaux soigneusement sélectionnés
pour vous accompagner dans votre parcours d'achat immobilier

Nimes- appartement t2 42.30m2 investisseurs

— Nimes 30000 —
122 000 €
37 m²
2 pièces
parkingbalcon/terrasse

Nos partenaires locaux
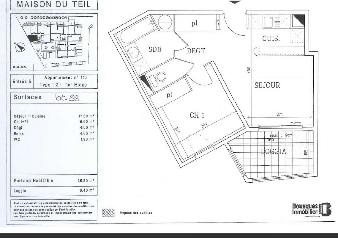
NIMES-Dans la résidence MAISON DU TEIL située à proximité de la « Ville Active » et des accès autoroute . Appartement de type T2 de 42.30m2 situé au 2eme étage comprenant un séjour avec cuisine américaine donnant sur une belle terrasse de 7.8m2 , une chambre , une salle de bains et un wc séparé.Ainsi qu'un emplacement de parking privatif. Actuellement loué 488+ 88€=576€ charges comprises - bien soumis à une convention PLS jusqu'en juin 2026

Honoraires d'agence de 4.35% à la charge de l'acquéreur
Barème des honoraires

Prêt immobilier

Vous souhaitez connaître votre capacité d’emprunt et trouver le meilleur crédit immobilier ?
Réaliser une simulation gratuite

Appartement à NIMES
Appartement à NIMES
Appartement à NIMES
Appartement à NIMES
Appartement à NIMES
Appartement à NIMES
Appartement à NIMES
Ce site est protégé par reCAPTCHA la Politique de confidentialité et les Conditions d’utilisation de Google s’appliquent.
Obtenir un prêt immobilier au meilleur taux ?

En poursuivant votre navigation sans modifier vos paramètres, vous acceptez l'utilisation de cookies susceptibles de réaliser des statistiques de visite. Cliquez ici pour plus d'informations