Bénéficiez des services de nos partenaires locaux soigneusement sélectionnés
pour vous accompagner dans votre parcours d'achat immobilier

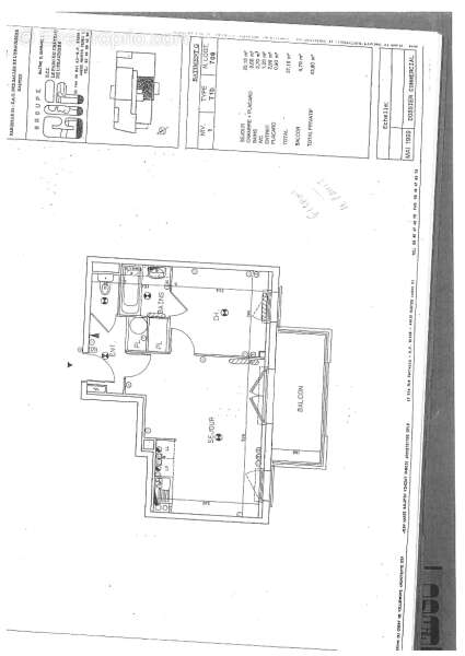
Appartement t2 nantes l eraudière - 37.1 m2 158 000 euros

— Nantes 44300 —
158 000 €
37 m²
2 pièces
parkingbalcon/terrasseascenseur

Nos partenaires locaux
PROCHE ERDRE DANS UN ENVIRONNEMENT VERDOYANT et PAISIBLE
Un appartement de type T2 de 37.10m² avec balcon de 6.70m², situé au 1er étage avec ascenseur.
Il comprend, une pièce de vie donnant sur un balcon de 6.70m², une chambre avec placard , une salle de bain et un WC séparé
Un garage boxé en sous-sol vient compléter ce bien
Une visite s'impose !!!
Les charges annuelles de copropriété s'élèvent à 950 ¿ et le montant de la taxe foncière est de 988 ¿
Pas de procédures en cours.
Les informations sur les risques auxquels ce bien est exposé sont disponibles sur le site Géorisques : http://www.georisques.gouv.fr
Voir plus

Référence: RV01612_0708
Honoraires d'agence de 5.33% à la charge de l'acquéreur
Barème des honoraires
DPE
A
B
C
D
E
F
G
GES
A
B
C
D
E
F
G

Prêt immobilier

Vous souhaitez connaître votre capacité d’emprunt et trouver le meilleur crédit immobilier ?
Réaliser une simulation gratuite

Appartement à NANTES
Appartement à NANTES
Appartement à NANTES
Appartement à NANTES
Appartement à NANTES
Appartement à NANTES
Ce site est protégé par reCAPTCHA la Politique de confidentialité et les Conditions d’utilisation de Google s’appliquent.
Obtenir un prêt immobilier au meilleur taux ?

En poursuivant votre navigation sans modifier vos paramètres, vous acceptez l'utilisation de cookies susceptibles de réaliser des statistiques de visite. Cliquez ici pour plus d'informations