Bénéficiez des services de nos partenaires locaux soigneusement sélectionnés
pour vous accompagner dans votre parcours d'achat immobilier

Appartement 76m² à paris 19e arrondissement

— Paris-19e 75019 —
450 000 €
76 m²
3 pièces

Nos partenaires locaux
ERA FLANDRE _ METRO CRIMEE (L7) à 2 min à pied .
À VENDRE , dans la résidence Île de Flandre, secteur Flandre / Aubervilliers à Paris 19ème.
AVIS AUX AMATEURS DE TRAVAUX ou AUX PROFESSIONS LIBERALES.
ERA FLANDRE vous propose un appartement au rez-de-chaussée de 76m² actuellement agencé pour l'exercice de professions libérales .
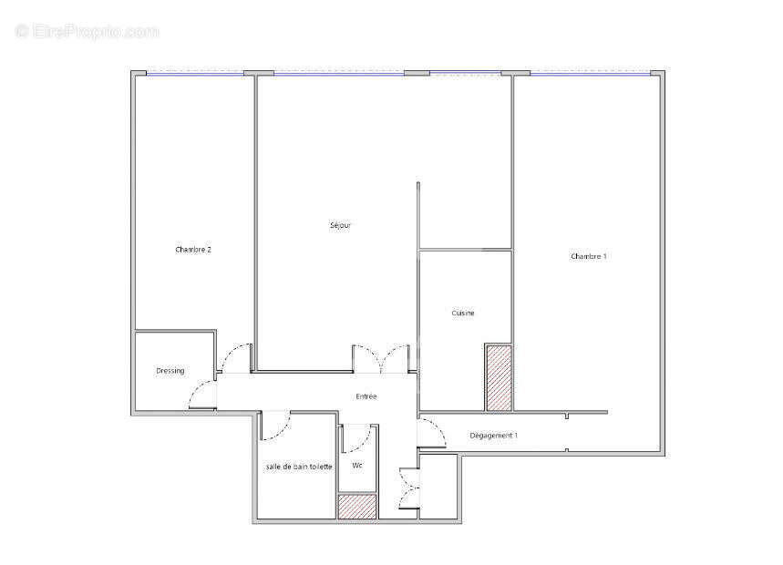
Aujourd'hui il est composé de 3 espaces pour recevoir la patientèle, 2 salles d'attente, un salle d'eau et de WC séparées.
Après travaux l'agencement pourrai être le suivant : une entrée avec placard, un séjour avec une cuisine ouverte de 29m² , 2 chambres, de 17.50 et 12.30m², une salle d'eau , un WC séparé et un dressing. Possibilité de créer une 2ème salle d'eau attenante à la chambre de 17.50m².
Une cave et une place de parking en sous-sol sont vendus avec le lot.
La résidence, construite dans les années 70, est sécurisée et bien entretenue, avec gardien et espaces verts. Vous profiterez d'un emplacement recherché, à seulement 2 minutes à pied du métro Crimée (ligne 7) et à 13 minutes du RER E (Rosa Parks) et du tramway T3b. Le quartier offre un cadre de vie dynamique et agréable, à proximité immédiate du canal de l'Ourcq, du Bassin de la Villette, de la Cité des sciences, de la Philharmonie, du Zénith, ainsi que de nombreux commerces, écoles et équipements de loisirs.
L'Etat des Risques et Pollution peut être consulté sur https://www.georisques.gouv.fr
Voir plus

Référence: 3570
DPE
A
B
C
D
E
F
G
GES
A
B
C
D
E
F
G

Prêt immobilier

Vous souhaitez connaître votre capacité d’emprunt et trouver le meilleur crédit immobilier ?
Réaliser une simulation gratuite

Appartement à PARIS-19E
Appartement à PARIS-19E
Appartement à PARIS-19E
Appartement à PARIS-19E
Appartement à PARIS-19E
Appartement à PARIS-19E
Appartement à PARIS-19E
Appartement à PARIS-19E
Appartement à PARIS-19E
Appartement à PARIS-19E
Ce site est protégé par reCAPTCHA la Politique de confidentialité et les Conditions d’utilisation de Google s’appliquent.
Obtenir un prêt immobilier au meilleur taux ?

En poursuivant votre navigation sans modifier vos paramètres, vous acceptez l'utilisation de cookies susceptibles de réaliser des statistiques de visite. Cliquez ici pour plus d'informations