Bénéficiez des services de nos partenaires locaux soigneusement sélectionnés
pour vous accompagner dans votre parcours d'achat immobilier

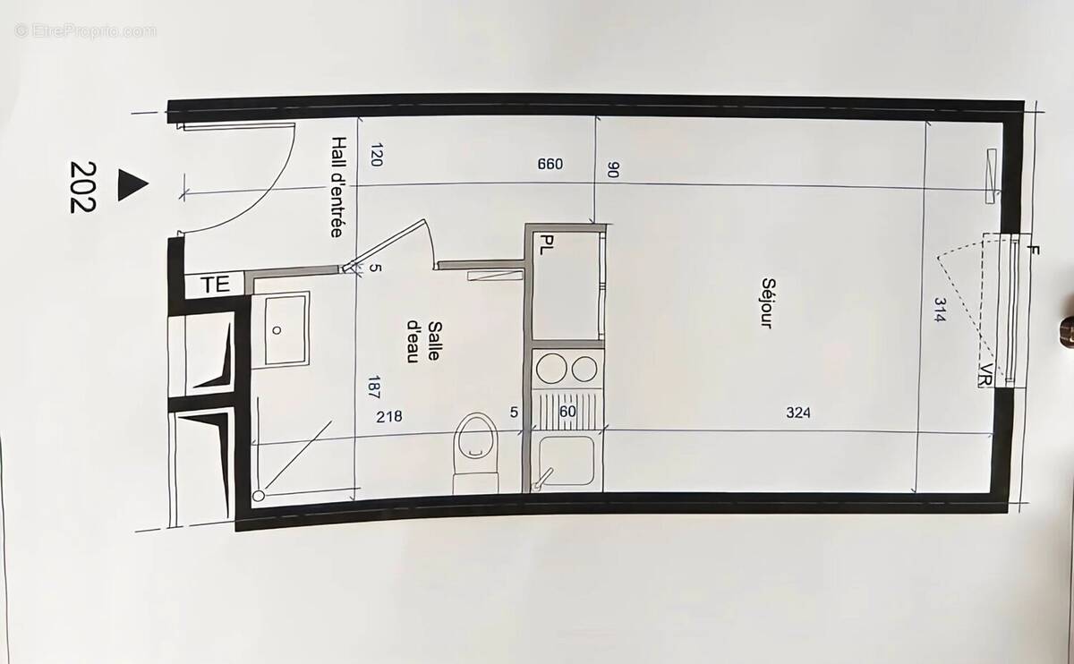
Studio meublé avec place de parking

— Marseille-10e 13010 —
79 000 €
19 m²
1 pièce

Nos partenaires locaux
Investissement locatif – Studio meublé avec parking – Résidence étudiante Nexity Studéa – Marseille 10ᵉ

Idéal investisseur.
Situé dans une résidence étudiante Nexity Studéa au 9 rue du Canada (Marseille 10ᵉ), ce studio meublé de 19,33 m², vendu avec une place de parking en sous-sol, constitue une opportunité rare d’investissement locatif sécurisé.

Le bien est loué dans le cadre d’un bail commercial Nexity en cours jusqu’en 2029, garantissant un loyer annuel de 4 263 TTC, sans vacance locative et avec une gestion intégrale assurée par l’exploitant.

Caractéristiques du studio :
- Pièce de vie avec kitchenette équipée
- Salle d’eau avec WC
- Placards de rangement
- Studio vendu meublé
- Résidence étudiante récente (2011), calme et bien entretenue
- Parking privatif en sous-sol inclus
- Loyer garanti : 4 263 euros TTC / an
- Indexation annuelle : 1,5 %
- Charges de copropriété : 334 euros / an
- Taxe foncière : 803 euros / an

Atouts pour l’investisseur :
- Investissement locatif clé en main
- Rentabilité stable et sécurisée
- Aucune vacance locative, aucune gestion à assurer
- Résidence étudiante très demandée dans le secteur
- Emplacement stratégique : à quelques pas de la Faculté de médecine de la Timone, des transports en commun, commerces et axes autoroutiers.

Ce studio meublé avec parking représente un placement idéal pour tout investisseur recherchant un revenu locatif garanti et un investissement sans contrainte.

DPE C réalisé le 03/07/2025 - Montant estimé des dépenses annuelles d’énergie : entre 360 et 520 par an (référence 2021, 2022, 2023)
Copropriété de 200 lots (Pas de procédure en cours).
Mandat numéro 27 – Honoraires charge vendeur
Les informations sur les risques auxquels ce bien est exposé sont disponibles sur le site Géorisques : www.georisques.gouv.fr.
Voir plus

Référence: 86080198
Barème des honoraires

Prêt immobilier

Vous souhaitez connaître votre capacité d’emprunt et trouver le meilleur crédit immobilier ?
Réaliser une simulation gratuite

Appartement à MARSEILLE-10E
Appartement à MARSEILLE-10E
Appartement à MARSEILLE-10E
Appartement à MARSEILLE-10E
Appartement à MARSEILLE-10E
Appartement à MARSEILLE-10E
Appartement à MARSEILLE-10E
Appartement à MARSEILLE-10E
Appartement à MARSEILLE-10E
Appartement à MARSEILLE-10E
Ce site est protégé par reCAPTCHA la Politique de confidentialité et les Conditions d’utilisation de Google s’appliquent.
Obtenir un prêt immobilier au meilleur taux ?

En poursuivant votre navigation sans modifier vos paramètres, vous acceptez l'utilisation de cookies susceptibles de réaliser des statistiques de visite. Cliquez ici pour plus d'informations