Bénéficiez des services de nos partenaires locaux soigneusement sélectionnés
pour vous accompagner dans votre parcours d'achat immobilier

Grande villa vue panoramique St Paul de Vence

— Saint-Paul 06570 —
1 250 000 €
374 m²
10 pièces
parkingpiscine

Nos partenaires locaux
RETOUR A LA VENTE
Villa provençale des années 70. construction de qualité. avec une vue panoramique sur la vallée de Saint Paul de Vence.
Elle se développe sur 3 niveaux à flanc de colline.
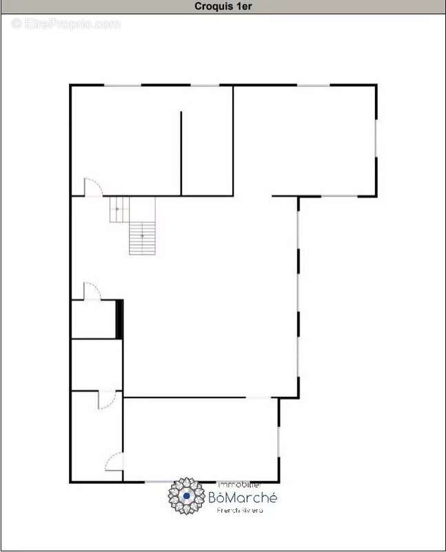
Au premier niveau se trouve une entrée majestueuse. trois grandes chambres avec accès terrasse dont une est avec salle de bains et toilettes privatives. une deuxième avec salle d'eau et dressing. une troisième chambre. un wc indépendant et une salle de bains indépendante.
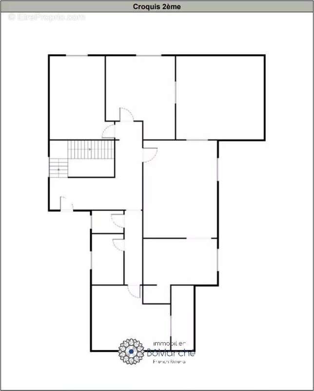
On emprunte un magnifique escalier en fer forgé pour accéder au niveau intermédiaire où se trouve une grande pièce de vie avec une splendide cheminée en pierre. une vaste pièce bibliothèque. une grande cuisine prolongée par une arrière cuisine. Toutes ces pièces donnent sur une grande terrasse avec une cuisine d'été et enfin un wc indépendant pour ce niveau et une chambre avec sa salle d'eau et son wc.
L'accès au niveau inférieur et à la piscine se fait par l'extérieur. A ce niveau on trouve une grande pièce polyvalente de 85 m2 avec de grandes baies vitrées ouvrant sur la piscine et un deux pièces indépendant avec kitchenette. salle de douche et wc indépendant ainsi que l'accès à une cave.
Un terrain de...Ping Pong (peut-être l'agrandir pour un terrain de paddle?) et environ 1000m2 de terrain en planches.
La maison est majoritairement exposée Ouest.
Plusieurs stationnements.
Aucun vis à vis
Gros potentiel si vous recherchez de beaux volumes et une vue imprenable.

Les informations sur les risques auxquels ce bien est exposé sont disponibles sur le site Géorisques : georisques.gouv.fr

Les honoraires sont à la charge des vendeurs.
Voir plus

Référence: 86075605
Barème des honoraires
DPE
A
B
C
D
E
F
G
GES
A
B
C
D
E
F
G
Maison à SAINT-PAUL
Maison à SAINT-PAUL
Maison à SAINT-PAUL
Maison à SAINT-PAUL
Maison à SAINT-PAUL
Maison à SAINT-PAUL
Maison à SAINT-PAUL
Maison à SAINT-PAUL
Maison à SAINT-PAUL
Maison à SAINT-PAUL
Maison à SAINT-PAUL
Maison à SAINT-PAUL
Maison à SAINT-PAUL
Maison à SAINT-PAUL
Maison à SAINT-PAUL
Maison à SAINT-PAUL
Maison à SAINT-PAUL
Géorisques

Les informations sur les risques auxquels ce bien est exposé sont disponibles sur le site Géorisques : www.georisques.gouv.fr

Ce site est protégé par hCaptcha Politique de confidentialité et Conditions d’utilisation s’appliquent.

En poursuivant votre navigation sans modifier vos paramètres, vous acceptez l'utilisation de cookies susceptibles de réaliser des statistiques de visite. Cliquez ici pour plus d'informations