Bénéficiez des services de nos partenaires locaux soigneusement sélectionnés
pour vous accompagner dans votre parcours d'achat immobilier

2 p avenue de wagram – à deux pas de la place de l’étoile

— Paris-17e 75017 —
450 000 €
2 pièces

Nos partenaires locaux
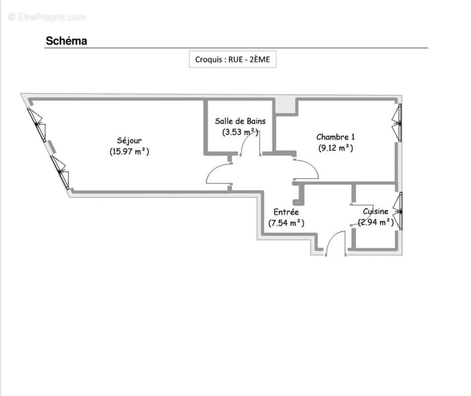
Dans un bel immeuble en pierre de taille réhabilité en 1999, situé au 2ᵉ étage avec ascenseur, nous vous proposons un appartement lumineux de 2 pièces – 39,10 m².

Il se compose d’une entrée avec placard, d’un séjour donnant sur l’avenue de Wagram, d’une chambre au calme sur cour, d’une cuisine aménagée, ainsi que d’une salle de bains avec baignoire et WC.

Chauffage individuel électrique. Double vitrage.
Commerces et transports (métro et bus) au pied de l’immeuble.

DPE : classe D – 206 kWh/m²/an
GES : classe B – 6 kg CO₂/m²/an
Estimation des coûts annuels d’énergie : entre 540 € et 760 € (prix moyens indexés au 1er janvier 2021)
Voir plus

Référence: 86080718
DPE
A
B
C
D
E
F
G

Prêt immobilier

Vous souhaitez connaître votre capacité d’emprunt et trouver le meilleur crédit immobilier ?
Réaliser une simulation gratuite

Appartement à PARIS-17E
Appartement à PARIS-17E
Appartement à PARIS-17E
Appartement à PARIS-17E
Appartement à PARIS-17E
Appartement à PARIS-17E
Appartement à PARIS-17E
Appartement à PARIS-17E
Appartement à PARIS-17E
Ce site est protégé par reCAPTCHA la Politique de confidentialité et les Conditions d’utilisation de Google s’appliquent.
Obtenir un prêt immobilier au meilleur taux ?

En poursuivant votre navigation sans modifier vos paramètres, vous acceptez l'utilisation de cookies susceptibles de réaliser des statistiques de visite. Cliquez ici pour plus d'informations