Bénéficiez des services de nos partenaires locaux soigneusement sélectionnés
pour vous accompagner dans votre parcours d'achat immobilier

Appartement 37m² à vitrolles

— Vitrolles 13127 —
251 500 €
38 m²
2 pièces
balcon/terrasseascenseur

Nos partenaires locaux
Découvrez votre Nid Douillet en Plein Coeur de Vitrolles

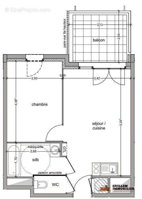
Plongez dans l'élégance et la modernité avec cet appartement T2 flambant neuf, situé dans la charmante ville de Vitrolles. Construit en 2024, cet appartement de 37,57 m² offre un cadre de vie exceptionnel, alliant confort et fonctionnalité. Idéalement situé au premier étage d'un immeuble de deux étages, cet appartement est doté d'un ascenseur pour un accès facile et pratique.

L'appartement se compose d'un séjour spacieux de 20 m², parfait pour recevoir vos proches ou simplement vous détendre. La cuisine, en coin cuisine, est non équipée, vous permettant ainsi de laisser libre cours à votre créativité et de l'aménager selon vos goûts. Une chambre confortable et une salle de bains moderne complètent cet espace de vie harmonieux. Le WC indépendant ajoute une touche de praticité supplémentaire.

Profitez également d'un balcon de 8 m², offrant une vue imprenable sur la ville et une exposition sud-ouest pour des moments de détente baignés de lumière naturelle. L'isolation RT2012 garantit un confort thermique optimal tout au long de l'année.

Les parties communes, tout comme l'intérieur de l'appartement, sont en parfait état de neuf, témoignant d'une construction récente et de qualité. Le type de chauffage individuel assure une gestion autonome et économique de votre consommation énergétique.

Vitrolles, avec ses nombreuses commodités à proximité, vous offre un cadre de vie idéal. À seulement 5 minutes à pied, vous trouverez des arrêts de bus, des crèches, des restaurants et des commerces d'alimentation générale. À 10 minutes à pied, vous accéderez à des écoles maternelles et élémentaires, des parcs et jardins, ainsi que des cabinets de médecins généralistes. Cette localisation privilégiée vous permet de profiter pleinement de la ville tout en étant au coeur de la nature.

Ne manquez pas cette opportunité unique de vivre dans un appartement neuf, moderne et bien situé. Contactez-nous dès aujourd'hui pour organiser une visite et découvrir votre futur chez-vous.

Honoraires à la charge du vendeur. Dans une copropriété de 206 lots. Aucune procédure n'est en cours. Non soumis au DPE. Les informations sur les risques auxquels ce bien est exposé sont disponibles sur le site Géorisques : georisques.gouv.fr.

Votre conseiller GUILLEM IMMOBILIER : Présidente - Solange GUILLEMIN
Carte T 66[Coordonnées masquées]00 001
RCP ALLIANZ IARD
Voir plus

Référence: VA1986-SOLANGEGUILLEMINIMMO
Bien en copropriété. Nombre de lots : 206.
Honoraires à la charge du vendeur.
Barème des honoraires

Prêt immobilier

Vous souhaitez connaître votre capacité d’emprunt et trouver le meilleur crédit immobilier ?
Réaliser une simulation gratuite

Résidence - Appartement à VITROLLES
Résidence
Appartement à VITROLLES
Plan intérieur - Appartement à VITROLLES
Plan intérieur
Résidence - Appartement à VITROLLES
Résidence
Plan extérieur - Appartement à VITROLLES
Plan extérieur
Appartement à VITROLLES
Ce site est protégé par reCAPTCHA la Politique de confidentialité et les Conditions d’utilisation de Google s’appliquent.
Obtenir un prêt immobilier au meilleur taux ?

En poursuivant votre navigation sans modifier vos paramètres, vous acceptez l'utilisation de cookies susceptibles de réaliser des statistiques de visite. Cliquez ici pour plus d'informations