Bénéficiez des services de nos partenaires locaux soigneusement sélectionnés
pour vous accompagner dans votre parcours d'achat immobilier

Appartement 41m² à vitrolles

— Vitrolles 13127 —
250 500 €
41 m²
2 pièces
parkingbalcon/terrasseascenseur

Nos partenaires locaux
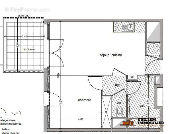
Découvrez ce magnifique appartement T2 à Vitrolles, situé à proximité de toutes les commodités essentielles. Cet appartement neuf de 41,35 m², construit en 2024, offre une isolation RT2012 et une terrasse de 8 m². Le séjour de 21 m² est idéal pour recevoir, tandis que la chambre, la salle de bains et le WC indépendant assurent un confort optimal. Le coin cuisine non équipé vous permet de personnaliser cet espace. Les ouvertures en PVC et le double vitrage garantissent une isolation thermique et phonique. Avec un étage élevé et un accès à l'ascenseur, vous bénéficierez d'une vue imprenable sur la ville. Le sous-sol offre un espace de stationnement intérieur. Vitrolles est une ville dynamique avec des commodités à proximité : un arrêt de bus, une crèche, une alimentation générale et des restaurants à 5 minutes à pied, et des écoles, des parcs et des médecins à 10 minutes. Ne manquez pas cette opportunité unique. Contactez-nous pour une visite.

Honoraires inclus de 4.38% à la charge de l'acquéreur. Prix hors honoraires 240 000 €. Dans une copropriété de 206 lots. Aucune procédure n'est en cours. Non soumis au DPE. Les informations sur les risques auxquels ce bien est exposé sont disponibles sur le site Géorisques : georisques.gouv.fr.

Votre conseiller GUILLEM IMMOBILIER : Présidente - Solange GUILLEMIN
Carte T 66[Coordonnées masquées]00 001
RCP ALLIANZ IARD
Voir plus

Référence: VA1987-SOLANGEGUILLEMINIMMO
Bien en copropriété. Nombre de lots : 206.
Honoraires d'agence de 4.38% à la charge de l'acquéreur
Barème des honoraires

Prêt immobilier

Vous souhaitez connaître votre capacité d’emprunt et trouver le meilleur crédit immobilier ?
Réaliser une simulation gratuite

Appartement à VITROLLES
Plan intérieur - Appartement à VITROLLES
Plan intérieur
Résidence - Appartement à VITROLLES
Résidence
Résidence - Appartement à VITROLLES
Résidence
Plan extérieur - Appartement à VITROLLES
Plan extérieur
Ce site est protégé par reCAPTCHA la Politique de confidentialité et les Conditions d’utilisation de Google s’appliquent.
Obtenir un prêt immobilier au meilleur taux ?

En poursuivant votre navigation sans modifier vos paramètres, vous acceptez l'utilisation de cookies susceptibles de réaliser des statistiques de visite. Cliquez ici pour plus d'informations