Bénéficiez des services de nos partenaires locaux soigneusement sélectionnés
pour vous accompagner dans votre parcours d'achat immobilier

Appartement 23m² à le havre

— Le Havre 76600 —
66 500 €
23 m²
1 pièce

Nos partenaires locaux
Spécial Investisseur – Forom® Immobilier

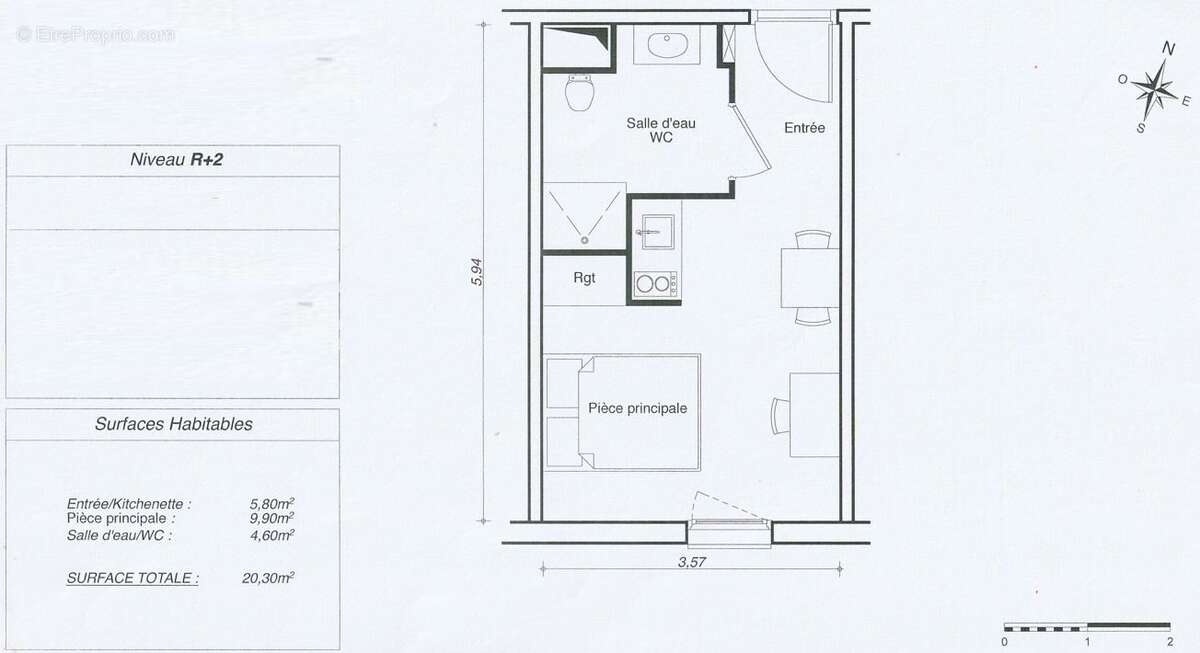
Appartement T1 au 1er étage d'environ 23 m² situé dans une résidence sur la commune du Havre, avec une rentabilité brute de 6,31%, soit 5,75% nette !

Le logement dispose d'un séjour, une cuisine et une salle d'eau avec un WC.

Loyer entièrement garanti et sécurisé avec un bail commercial, aucune contrainte de gestion, faibles charges.

!! Le mobilier va être changé cette année, à la charge du propriétaire actuel !!

C'est le produit idéal pour se constituer facilement un patrimoine immobilier.

• Loyer annuel HT : 4 193€ / an soit 349€ / mois
• Rentabilité : 6,31% brute et 5,75% nette !
• Charges : 71€ / an (fonds ALUR)
• Taxe foncière : 300€ / an
• Gestionnaire : Adagio (Pierre et Vacances)
• Indexation selon l'indice IRL
• DPE : D
• Nombre de lots : 111
• Honoraires charge vendeur

Les avantages
• Les loyers sont réglés que le logement soit occupé ou non (sans risque de vacances locatives ou d'impayés).
• Vous bénéficiez également d'avantages fiscaux lié au « LMNP amortissable », donnant une exonération d'impôt sur les revenus locatifs.
• Aucuns frais de gestion courante (le gestionnaire vous règle directement le loyer sans intermédiaire ni frais de gestion locative).
• Emplacement premium bien au-dessous du prix du marché.

La résidence
• Située juste derrière le centre commercial Docks Vauban, l'Aparthôtel Adagio Access Le Havre Les Docks offre un hébergement câblé moderne et pratique, à seulement quelques minutes à pied du centre-ville et de la gare SNCF.
• Tous les logements sont climatisés, disposent d'un salon, d'une kitchenette équipée (micro?ondes, plaques, réfrigérateur, cafetière, vaisselle), TV, téléphone et Wi?Fi gratuit.

Honoraires à la charge du vendeur. Dans une copropriété de 111 lots. Aucune procédure n'est en cours. Classe énergie C, Classe climat B Montant estimé des dépenses annuelles d'énergie pour un usage standard : entre 1.00 € et 1.00 € sur les années 2021, 2022 et 2023 (abonnements compris). Les informations sur les risques auxquels ce bien est exposé sont disponibles sur le site Géorisques : georisques.gouv.fr.
Voir plus

Référence: 3777-FOROM
Bien en copropriété. Nombre de lots : 111.
Honoraires à la charge du vendeur.
Barème des honoraires
DPE
A
B
C
D
E
F
G
GES
A
B
C
D
E
F
G

Prêt immobilier

Vous souhaitez connaître votre capacité d’emprunt et trouver le meilleur crédit immobilier ?
Réaliser une simulation gratuite

Appartement à LE HAVRE
Appartement à LE HAVRE
Appartement à LE HAVRE
Appartement à LE HAVRE
Appartement à LE HAVRE
Appartement à LE HAVRE
Appartement à LE HAVRE
Appartement à LE HAVRE
Ce site est protégé par reCAPTCHA la Politique de confidentialité et les Conditions d’utilisation de Google s’appliquent.
Obtenir un prêt immobilier au meilleur taux ?

En poursuivant votre navigation sans modifier vos paramètres, vous acceptez l'utilisation de cookies susceptibles de réaliser des statistiques de visite. Cliquez ici pour plus d'informations