Bénéficiez des services de nos partenaires locaux soigneusement sélectionnés
pour vous accompagner dans votre parcours d'achat immobilier

Commerce 178m² à paris-10e

— Paris-10e 75010 —
1 160 000 €
178 m²

Nos partenaires locaux
GIFOM – Murs commerciaux occupés - Boutique de 175,68 m² sur plusieurs niveaux 75010 Paris – Rue du Faubourg Saint-Martin / Porte Saint-Martin.

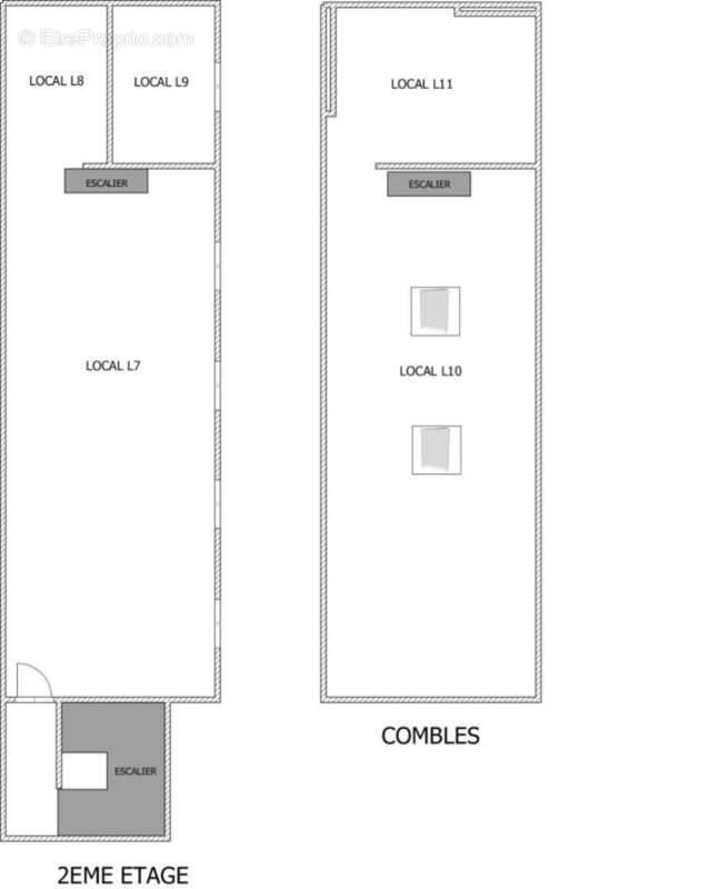
Opportunité rare dans un quartier dynamique et recherché du 10? arrondissement de Paris ! Situé sur une artère commerçante à forte visibilité, cet ensemble de 226,02 m² de surface totale au sol (175,68 m² Carrez) se déploie sur trois niveaux :
-Rez-de-chaussée : Boutique lumineuse de 62,48 m², avec belle hauteur sous plafond.
-1er étage : Espace de 56,09 m² aménagé en bureaux et rangements, accessible depuis un large palier.
- 2e et dernier étage : Environ 56 m², actuellement utilisés comme bureaux et espace détente pour le personnel.

Beaux volumes et un fort potentiel de valorisation selon besoins. Locataire sérieux en place – Bail commercial signé le 01/10/2023 – Foncier charge locataire - Rendement immédiat avec perspective de valorisation à moyen terme.

Loyer annuel net : 49 200 € HT HC / NET (soit 4 100 €/mois).
Prix de vente : 1 160 000 € FAI – HT.
Réf. Agence : VEMU 981.
GIFOM - Spécialiste en immobilier Commercial
Site internet : https://gifom.octissimo.com/
Voir plus

Référence: VEMU 981-GIFOM75
Honoraires d'agence de 5.45% à la charge de l'acquéreur
Barème des honoraires
DPE
A
B
C
D
E
F
G
GES
A
B
C
D
E
F
G

Prêt immobilier

Vous souhaitez connaître votre capacité d’emprunt et trouver le meilleur crédit immobilier ?
Réaliser une simulation gratuite

RDC - Commerce à PARIS-10E
RDC
2eme etage - Commerce à PARIS-10E
2eme etage
1er etage  - Commerce à PARIS-10E
1er etage
sous sol - Commerce à PARIS-10E
sous sol
Ce site est protégé par reCAPTCHA la Politique de confidentialité et les Conditions d’utilisation de Google s’appliquent.
Obtenir un prêt immobilier au meilleur taux ?

En poursuivant votre navigation sans modifier vos paramètres, vous acceptez l'utilisation de cookies susceptibles de réaliser des statistiques de visite. Cliquez ici pour plus d'informations