Bénéficiez des services de nos partenaires locaux soigneusement sélectionnés
pour vous accompagner dans votre parcours d'achat immobilier

Appartement 86m² à montargis

— Montargis 45200 —
214 020 €
86 m²
4 pièces
parkingbalcon/terrasseascenseur

Nos partenaires locaux
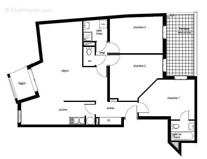
Appartement T4 au Coeur de la Ville
Découvrez le potentiel de cet appartement T4 de 86,30 m², situé au 1er étage d'une résidence de standing construite en 2014.

Cet appartement, baigné de lumière naturelle offre un cadre de vie exceptionnel en plein centre-ville de Montargis.

Vous y trouverez un séjour de 26 m² donnant sur une loggia. Trois chambres spacieuses ouvertes sur une terrasse de 11m², dont une avec salle de bains,

Une salle d'eau et un WC indépendant. Un coin cuisine à équiper selon vos goûts.

La résidence est sécurisée et bénéficie d'un ascenseur.

À proximité, vous trouverez plusieurs commodités. En quelques minutes à pied, plusieurs commerces d'alimentation générale, la rue principale, des restaurants, des écoles, parcs...


A bientôt pour la visite !

Honoraires inclus de 3.33% à la charge de l'acquéreur. Prix hors honoraires 207 120 €. Dans une copropriété de 32 lots. Aucune procédure n'est en cours. Classe énergie D, Classe climat B. Date de réalisation du DPE : 13-01-2011. Les informations sur les risques auxquels ce bien est exposé sont disponibles sur le site Géorisques : georisques.gouv.fr.

Votre conseiller agence central : Julia GONCALVES
Agent commercial (Entreprise individuelle)
RSAC 2024AC00164
Voir plus

Référence: VA2011-ENDIRECTPROPRIO
Bien en copropriété. Nombre de lots : 32.
Honoraires d'agence de 3.33% à la charge de l'acquéreur
Barème des honoraires
DPE
A
B
C
D
E
F
G
GES
A
B
C
D
E
F
G

Prêt immobilier

Vous souhaitez connaître votre capacité d’emprunt et trouver le meilleur crédit immobilier ?
Réaliser une simulation gratuite

Appartement à MONTARGIS
Appartement à MONTARGIS
Appartement à MONTARGIS
Appartement à MONTARGIS
Appartement à MONTARGIS
Appartement à MONTARGIS
Appartement à MONTARGIS
Appartement à MONTARGIS
Appartement à MONTARGIS
Ce site est protégé par reCAPTCHA la Politique de confidentialité et les Conditions d’utilisation de Google s’appliquent.
Obtenir un prêt immobilier au meilleur taux ?

En poursuivant votre navigation sans modifier vos paramètres, vous acceptez l'utilisation de cookies susceptibles de réaliser des statistiques de visite. Cliquez ici pour plus d'informations