Appartement triplex 94 m2 non aménagé

— Saint-Gilles 30800 —
115 797 €
94 m²
1 pièce
balcon/terrasse

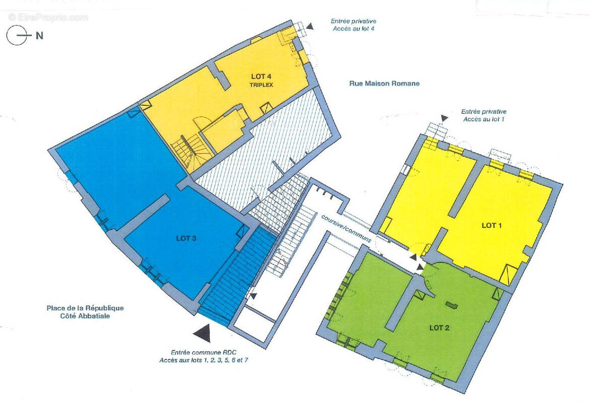
A vendre au coeur du Centre Historique de la Commune de St Gilles, face à la Maison Romane et à proximité de l'Abbatiale, appartement non aménagé (plateau nu et brut) en triplex, d'une superficie de 94 m2. Ce bien est doté d'une courette avec verrière et d'une mezzanine. Ensemble immobilier de 12 lots. Une information ! Une visite ! Merci de contacter l'Agence MG Immobilier Edith VANDAMME [Coordonnées masquées] RSAC 829 259 688 Honoraires Agence Charge Acquéreur.

Référence: 2178-25
Bien en copropriété. Nombre de lots : 7.
Honoraires d'agence de 8% à la charge de l'acquéreur
Barème des honoraires

Prêt immobilier

Vous souhaitez connaître votre capacité d’emprunt et trouver le meilleur crédit immobilier ?
Réaliser une simulation gratuite

Appartement à SAINT-GILLES
Appartement à SAINT-GILLES
Appartement à SAINT-GILLES
Appartement à SAINT-GILLES
Appartement à SAINT-GILLES
Appartement à SAINT-GILLES
Appartement à SAINT-GILLES
Appartement à SAINT-GILLES
Appartement à SAINT-GILLES
Appartement à SAINT-GILLES
Ce site est protégé par reCAPTCHA la Politique de confidentialité et les Conditions d’utilisation de Google s’appliquent.
Obtenir un prêt immobilier au meilleur taux ?

En poursuivant votre navigation sans modifier vos paramètres, vous acceptez l'utilisation de cookies susceptibles de réaliser des statistiques de visite. Cliquez ici pour plus d'informations