Bénéficiez des services de nos partenaires locaux soigneusement sélectionnés
pour vous accompagner dans votre parcours d'achat immobilier

Villa au calme - beaux volumes - vue verdoyante - terrasse et jardin cosy

— Mandelieu-La-Napoule 06210 —
680 000 €
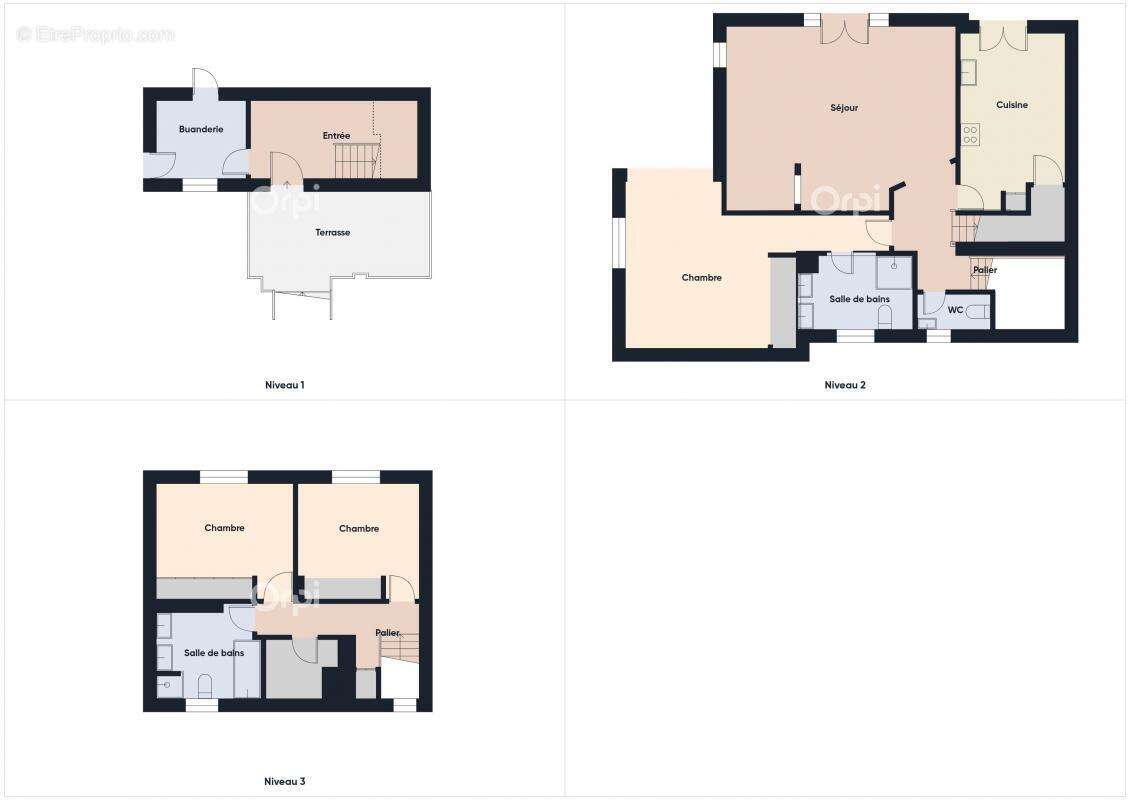
134 m² / 1 000 m²
4 pièces
parkingbalcon/terrassejardin

Nos partenaires locaux
Votre équipe Orpi est disponible par téléphone, privilégiez un appel pour une réponse rapide et efficace, n'hésitez pas.

En co-exclusivité
Sur les hauteurs de Mandelieu – Maison 4 pièces avec jardin, vue dégagée et calme absolu
Perchée au cœur d'un écrin de verdure, dans un quartier résidentiel prisé, cette maison mitoyenne de charme vous offre un cadre de vie paisible, baigné de lumière et sans aucun vis-à-vis.

Ce que vous allez aimer :
Un vaste séjour lumineux, prolongé par une terrasse ensoleillée, idéale pour vos petits-déjeuners face à la nature

Une cuisine indépendante aménagée, prête à accueillir vos moments gourmands

Une chambre de plain-pied avec salle d'eau privative : parfaite pour vivre de plain-pied ou accueillir famille et amis

À l'étage, deux belles chambres, une spacieuse salle de bain avec baignoire et douche, et un dressing indépendant digne de ce nom

Un extérieur sans contrainte, mais avec tout le charme :
Un jardin paysager facile à entretenir, une terrasse exposée sud-est, et un environnement calme qui invite à la détente, au soleil toute la journée.

Confort et praticité au quotidien :
Double vitrage, isolation soignée

Buanderie, vide sanitaire et deux grandes caves avec potentiel d'aménagement

Double stationnement privatif juste devant la maison

Petite copropriété sécurisée, très bien entretenue et avec de faibles charges

Un emplacement stratégique et serein :
À seulement quelques minutes du centre de Mandelieu, des commerces, écoles, plages et accès autoroute, vous profitez de tous les avantages de la ville, sans en subir les nuisances.

Maison idéale pour une vie douce en famille ou une résidence secondaire de rêve.
Un bien rare, à découvrir sans tarder. Coup de cœur assuré dès la première visite.

Proposée par votre Agence Immobilière Orpi. Visite Virtuelle 3D disponible en Agence.
Référence agence : 8716
Voir plus

Référence: 642W-RFZ-8XS
Bien en copropriété. Nombre de lots : 2.
Honoraires à la charge du vendeur.
DPE
A
B
C
D
E
F
G
GES
A
B
C
D
E
F
G

Prêt immobilier

Vous souhaitez connaître votre capacité d’emprunt et trouver le meilleur crédit immobilier ?
Réaliser une simulation gratuite

Maison à MANDELIEU-LA-NAPOULE
Maison à MANDELIEU-LA-NAPOULE
Maison à MANDELIEU-LA-NAPOULE
Maison à MANDELIEU-LA-NAPOULE
Maison à MANDELIEU-LA-NAPOULE
Maison à MANDELIEU-LA-NAPOULE
Maison à MANDELIEU-LA-NAPOULE
Maison à MANDELIEU-LA-NAPOULE
Maison à MANDELIEU-LA-NAPOULE
Maison à MANDELIEU-LA-NAPOULE
Maison à MANDELIEU-LA-NAPOULE
Maison à MANDELIEU-LA-NAPOULE
Maison à MANDELIEU-LA-NAPOULE
Maison à MANDELIEU-LA-NAPOULE
Maison à MANDELIEU-LA-NAPOULE
Maison à MANDELIEU-LA-NAPOULE
Maison à MANDELIEU-LA-NAPOULE
Maison à MANDELIEU-LA-NAPOULE
Maison à MANDELIEU-LA-NAPOULE
Maison à MANDELIEU-LA-NAPOULE
Maison à MANDELIEU-LA-NAPOULE
Maison à MANDELIEU-LA-NAPOULE
Maison à MANDELIEU-LA-NAPOULE
Maison à MANDELIEU-LA-NAPOULE
Maison à MANDELIEU-LA-NAPOULE
Maison à MANDELIEU-LA-NAPOULE
Maison à MANDELIEU-LA-NAPOULE
Maison à MANDELIEU-LA-NAPOULE
Ce site est protégé par reCAPTCHA la Politique de confidentialité et les Conditions d’utilisation de Google s’appliquent.
Obtenir un prêt immobilier au meilleur taux ?

En poursuivant votre navigation sans modifier vos paramètres, vous acceptez l'utilisation de cookies susceptibles de réaliser des statistiques de visite. Cliquez ici pour plus d'informations