Bénéficiez des services de nos partenaires locaux soigneusement sélectionnés
pour vous accompagner dans votre parcours d'achat immobilier

Première ligne - appartement de standing 4pièces avec terrasse et garage.

— Saint-Cyprien 66750 —
695 000 €
93 m²
4 pièces
parkingbalcon/terrasse

Nos partenaires locaux
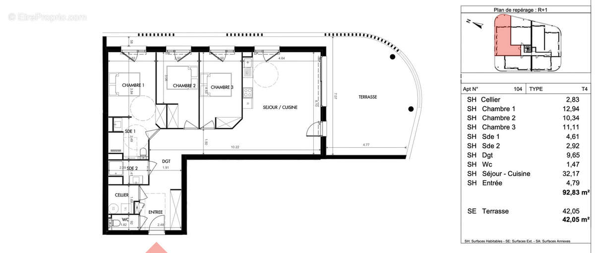
Dans un cadre privilégié face à la plage de l'Art, dans une résidence de standing sécurisée avec ascenseur, copropriété de 12 lots. Au 1er étage, cet appartement d'exception de type 4 d'une superficie 93 m2 se compose d'une entrée avec placard, un séjour avec cuisine ouverte de 32 m2 donnant sur une terrasse généreuse de 42m2 . L'espace nuit se compose de trois chambres avec placard aménagé dont une chambre parentale (salle d'eau avec WC), une salle d'eau avec douche à l'italienne et un WC indépendant. L'appartement dispose d'un garage d'une superficie de 15,38 m2.
Des prestations de standing: Normes RE2020, panneaux photovoltaïques, ascenseurs, menuiseries alu ou pvc, cuisine moderne finement équipée aménagé,climatisation gainée Air Zone,garage et parking sécurisés.
FRAIS DE NOTAIRE RÉDUITS.
Voir plus

Référence: 207
Bien en copropriété. Nombre de lots : 12.
Honoraires à la charge du vendeur.
Barème des honoraires

Prêt immobilier

Vous souhaitez connaître votre capacité d’emprunt et trouver le meilleur crédit immobilier ?
Réaliser une simulation gratuite

Appartement à SAINT-CYPRIEN
Appartement à SAINT-CYPRIEN
Appartement à SAINT-CYPRIEN
Appartement à SAINT-CYPRIEN
Appartement à SAINT-CYPRIEN
Appartement à SAINT-CYPRIEN
Appartement à SAINT-CYPRIEN
Ce site est protégé par reCAPTCHA la Politique de confidentialité et les Conditions d’utilisation de Google s’appliquent.
Obtenir un prêt immobilier au meilleur taux ?

En poursuivant votre navigation sans modifier vos paramètres, vous acceptez l'utilisation de cookies susceptibles de réaliser des statistiques de visite. Cliquez ici pour plus d'informations