Bénéficiez des services de nos partenaires locaux soigneusement sélectionnés
pour vous accompagner dans votre parcours d'achat immobilier

Saint-pierre-en-faucigny – t3 lumineux avec terrasse de 35 m²

— Saint-Pierre-En-Faucigny 74800 —
350 000 €
66 m²
3 pièces
parkingbalcon/terrasseascenseur

Nos partenaires locaux
Saint-Pierre-en-Faucigny – T3 lumineux avec terrasse de 35 m² et jolie vue

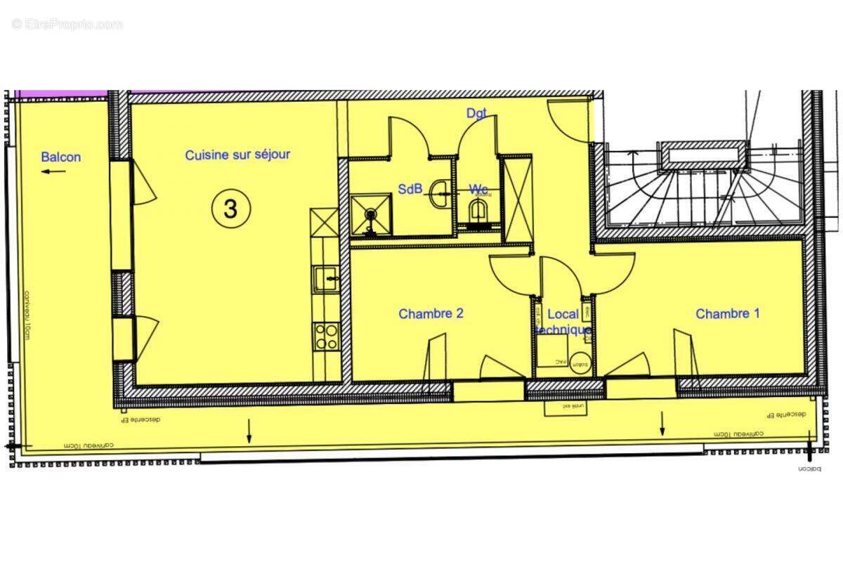
Au sein d'une résidence de 2025 de standing, à taille humaine, située à Saint-Pierre-en-Faucigny, découvrez ce T3 de premier étage, lumineux, fonctionnel et idéalement exposé.

Une belle vie dedans & dehors
Parfaitement orienté sud-est, cet appartement bénéficie d'une superbe terrasse de près de 35 m², accessible depuis le séjour comme depuis les deux chambres – un vrai prolongement du confort intérieur vers l'extérieur, avec une jolie vue dégagée.

Distribution optimale & prestations de qualité
Espace de vie ouvert, avec cuisine équipée moderne

Deux chambres, chacune avec accès terrasse

Salle d'eau contemporaine

WC séparé

Local technique / buanderie pratique

Performance énergétique & confort thermique
Pompe à chaleur individuelle

Chauffage au sol

DPE classé A : confort et économies au rendez-vous

Charges de copropriété faibles

Stationnements privatifs inclus
1 place de parking en sous-sol
2 stationnements extérieurs

Une localisation idéale au quotidien
À 1 min de l'autoroute (Genève / Annecy / Chamonix)
À 2 min des commerces de proximité
À 3 min de la gare Léman Express
À 1 min de l'école primaire

Un bien rare avec une terrasse exceptionnelle et une belle lumière dès le matin.
Un coup de cœur assuré pour les amateurs de calme, de confort et de modernité. Honoraires à la charge du vendeur - Nombre de lots dans la copropriété: 6 - Montant moyen de la quote-part de charges courantes 960 €/an - Montant estimé des dépenses annuelles d'énergie pour un usage standard, établi à partir des prix de l'énergie de l'année 2023 : 380€ ~ 580€ - Les informations sur les risques auxquels ce bien est exposé sont disponibles sur le site Géorisques : www.georisques.gouv.fr - Claudine CIBORSKI - Agent commercial - EI - RSAC Annecy 819 679 887
Voir plus

Référence: 86073627
Bien en copropriété. Nombre de lots : 6. Charges de copropriété : 6 €.
Honoraires à la charge du vendeur.
DPE
A
B
C
D
E
F
G
GES
A
B
C
D
E
F
G

Prêt immobilier

Vous souhaitez connaître votre capacité d’emprunt et trouver le meilleur crédit immobilier ?
Réaliser une simulation gratuite

Appartement à SAINT-PIERRE-EN-FAUCIGNY
Appartement à SAINT-PIERRE-EN-FAUCIGNY
Appartement à SAINT-PIERRE-EN-FAUCIGNY
Appartement à SAINT-PIERRE-EN-FAUCIGNY
Appartement à SAINT-PIERRE-EN-FAUCIGNY
Appartement à SAINT-PIERRE-EN-FAUCIGNY
Ce site est protégé par reCAPTCHA la Politique de confidentialité et les Conditions d’utilisation de Google s’appliquent.
Obtenir un prêt immobilier au meilleur taux ?

En poursuivant votre navigation sans modifier vos paramètres, vous acceptez l'utilisation de cookies susceptibles de réaliser des statistiques de visite. Cliquez ici pour plus d'informations