Bénéficiez des services de nos partenaires locaux soigneusement sélectionnés
pour vous accompagner dans votre parcours d'achat immobilier

Dernier étage & terrasse – duplex saint-pierre-en-faucigny

— Saint-Pierre-En-Faucigny 74800 —
450 000 €
78 m²
4 pièces
parkingbalcon/terrasseascenseur

Nos partenaires locaux
Dernier étage & terrasse – DUPLEX Saint-Pierre-en-Faucigny

Dernier étage, vue dégagée & confort premium

Situé à Saint-Pierre-en-Faucigny, dans une résidence de 2025, intimiste (6 appartements seulement), ce T4 en duplex au dernier étage coche toutes les cases du bien d'exception :

Emplacement ultra pratique
Construction haut de gamme
Espace, lumière & extérieurs généreux
Faibles charges & DPE A

Un intérieur pensé pour votre confort
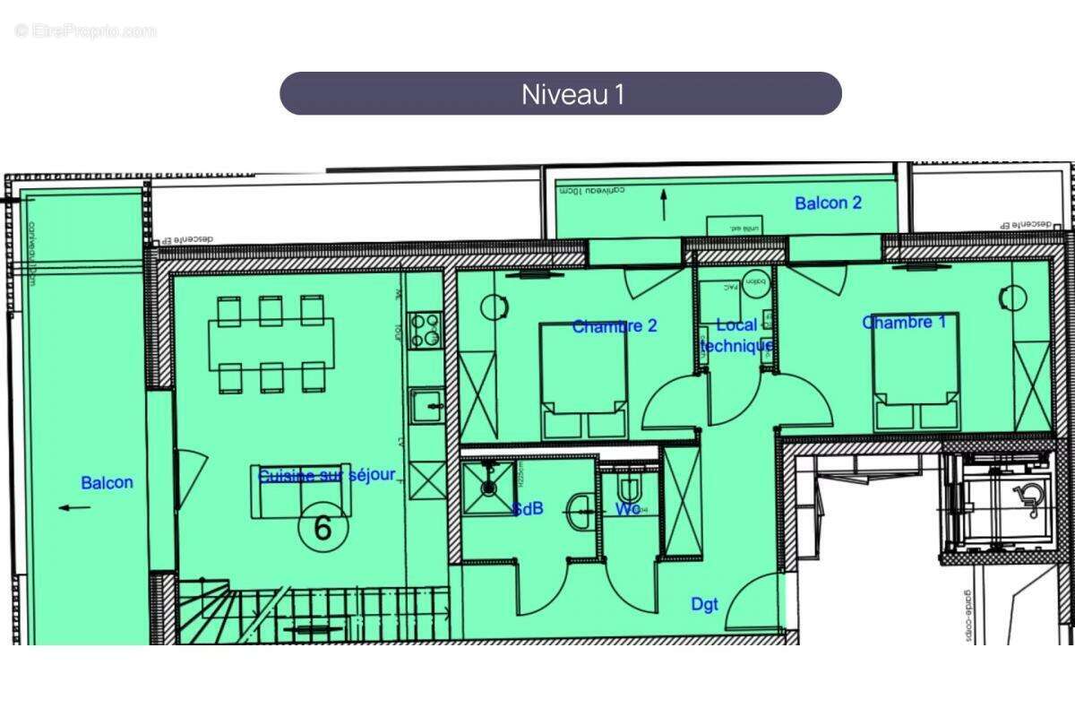
Ce duplex lumineux, orienté sud-ouest, se compose de :

Premier niveau

Une belle pièce de vie avec cuisine équipée ouverte sur séjour

Accès direct à une terrasse couverte (sans vis-à-vis) + balcon

Deux chambres avec accès balcon

Une salle d'eau, un WC séparé, un local technique

À l'étage

Une troisième chambre

Un bureau (ou espace détente selon vos envies)

Une seconde salle d'eau avec WC

Prestations & équipements haut de gamme
Pompe à chaleur individuelle avec chauffage au sol

DPE classé A : performance énergétique au top

Charges de copropriété très faibles

Terrasse abritée et profonde pour un vrai espace de vie extérieur

Aucun vis-à-vis côté salon

Résidence récente et moderne

Copropriété à taille humaine

Stationnements privatifs inclus
1 place de parking en sous-sol
2 places de stationnement extérieures

Un emplacement stratégique & pratique au quotidien
À 1 min de l'autoroute Genève / Annecy / Chamonix
À 2 min des premiers commerces
A 3 min de la gare Léman Express
À 1 min de l'école primaire

Un bien rare, complet et parfaitement situé. Une visite suffit pour être conquis ! Honoraires à la charge du vendeur - Nombre de lots dans la copropriété: 6 - Montant moyen de la quote-part de charges courantes 1,200 €/an - Montant estimé des dépenses annuelles d'énergie pour un usage standard, établi à partir des prix de l'énergie de l'année 2023 : 500€ ~ 730€ - Les informations sur les risques auxquels ce bien est exposé sont disponibles sur le site Géorisques : www.georisques.gouv.fr - Claudine CIBORSKI - Agent commercial - EI - RSAC Annecy 819 679 887
Voir plus

Référence: 86073682
Bien en copropriété. Nombre de lots : 6. Charges de copropriété : 8 €.
Honoraires à la charge du vendeur.
DPE
A
B
C
D
E
F
G
GES
A
B
C
D
E
F
G

Prêt immobilier

Vous souhaitez connaître votre capacité d’emprunt et trouver le meilleur crédit immobilier ?
Réaliser une simulation gratuite

Appartement à SAINT-PIERRE-EN-FAUCIGNY
Appartement à SAINT-PIERRE-EN-FAUCIGNY
Appartement à SAINT-PIERRE-EN-FAUCIGNY
Appartement à SAINT-PIERRE-EN-FAUCIGNY
Appartement à SAINT-PIERRE-EN-FAUCIGNY
Appartement à SAINT-PIERRE-EN-FAUCIGNY
Appartement à SAINT-PIERRE-EN-FAUCIGNY
Appartement à SAINT-PIERRE-EN-FAUCIGNY
Appartement à SAINT-PIERRE-EN-FAUCIGNY
Ce site est protégé par reCAPTCHA la Politique de confidentialité et les Conditions d’utilisation de Google s’appliquent.
Obtenir un prêt immobilier au meilleur taux ?

En poursuivant votre navigation sans modifier vos paramètres, vous acceptez l'utilisation de cookies susceptibles de réaliser des statistiques de visite. Cliquez ici pour plus d'informations