Bénéficiez des services de nos partenaires locaux soigneusement sélectionnés
pour vous accompagner dans votre parcours d'achat immobilier

Maison indépendante avec jardin et sous-sol total

— Torcy 77200 —
320 000 €
81 m²
4 pièces
parkingbalcon/terrasse

Nos partenaires locaux
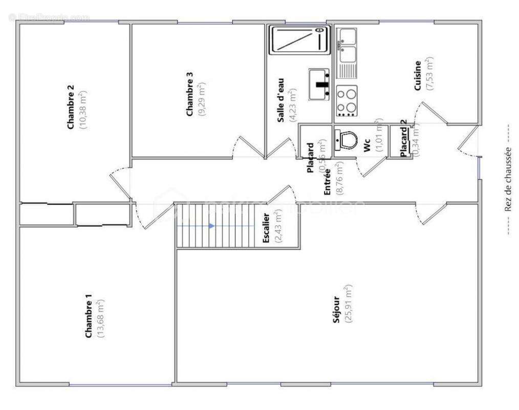
EN EXCLUSIVITE : Venez découvrir ce petit bijou, une maison INDEPENDANTE de 1974 élevée sur sous-sol total sur une parcelle de 415m². Elle est composée d'une ENTREE avec placard qui dessert une CUISINE indépendante (pouvant être ouverte si besoin), un beau SEJOUR de 26m² avec balcon exposé SUD, un WC indépendant, une SALLE D'EAU, TROIS CHAMBRES, dont deux avec placard.
Depuis l'intérieur, vous pourrez accéder au sous-sol total répartis en plusieurs espaces pouvant laisser libre cours à votre imagination tout en conservant du stationnement.
Vous aurez la place également de stationner des véhicules à l'intérieur de la propriété.

Les + :
- Maison indépendante
- Sous-sol total
- Enorme potentiel

Attention, des travaux d'isolations et changement en double vitrage est à prévoir afin d'améliorer l'étiquette énergétique.

Cette annonce référence 295236 vous est présentée par votre agent commercial BSK Immobilier ROSAYA CAZAU (EI) immatriculé au RSAC de NANTEUIL-LES-MEAUX (77100) sous le numéro 88392779000013.

Prix du bien : 320 000,00 €
Les honoraires d'agence sont à la charge du vendeur.

A propos des performances énergétiques :
Date de réalisation du diagnostic énergétique : 28/05/2025
Score DPE : 257 kWhEP/m²/an
Score GES : 56 kgepCO2/m²/an
Montant estimé des dépenses annuelles d'énergie pour un usage standard : entre 1870.00 € et 2590.00 € par an. Prix moyens des énergies indexés sur l'année 2023 (abonnements compris).

Les informations sur les risques auxquels ce bien est exposé sont disponibles sur le site Géorisques : www.georisques.gouv.fr
Voir plus

Référence: 295236
Honoraires à la charge du vendeur.
DPE
A
B
C
D
E
F
G
GES
A
B
C
D
E
F
G

Prêt immobilier

Vous souhaitez connaître votre capacité d’emprunt et trouver le meilleur crédit immobilier ?
Réaliser une simulation gratuite

Maison à TORCY
Maison à TORCY
Maison à TORCY
Maison à TORCY
Maison à TORCY
Maison à TORCY
Maison à TORCY
Maison à TORCY
Maison à TORCY
Maison à TORCY
Maison à TORCY
Maison à TORCY
Maison à TORCY
Maison à TORCY
Maison à TORCY
Maison à TORCY
Maison à TORCY
Maison à TORCY
Maison à TORCY
Maison à TORCY
Maison à TORCY
Maison à TORCY
Maison à TORCY
Maison à TORCY
Maison à TORCY
Maison à TORCY
Maison à TORCY
Ce site est protégé par reCAPTCHA la Politique de confidentialité et les Conditions d’utilisation de Google s’appliquent.
Obtenir un prêt immobilier au meilleur taux ?

En poursuivant votre navigation sans modifier vos paramètres, vous acceptez l'utilisation de cookies susceptibles de réaliser des statistiques de visite. Cliquez ici pour plus d'informations