Bénéficiez des services de nos partenaires locaux soigneusement sélectionnés
pour vous accompagner dans votre parcours d'achat immobilier

Appartement

— Gujan-Mestras 33470 —
150 000 €
34 m²
2 pièces

Nos partenaires locaux
33470 - GUJAN-MESTRAS - APPARTEMENT 34.0m²- PROCHE COMMERCES - 2 PIÈCES - 1 CHAMBRE - RENOVÉ

Efficity vous présente cet appartement T2 au sein d'une bâtisse du début du XIXe siècle entièrement rénovée en 2024 pour offrir un confort moderne tout en préservant son caché.

Que ce soit pour une résidence principale, un pied-à-terre ou pour un investissement locatif, il constitue une opportunité sur le Bassin d'Arcachon.
L'immeuble, composé de seulement huit lots, a été entièrement rénové. La façade, l'isolation et les parties communes ont été restaurées avec soin afin de préserver le charme historique du bâtiment. Cette petite copropriété permet de bénéficier de charges réduites. Copropriété en cours de création.

Idéalement situé, il bénéficie d'un emplacement privilégié, à proximité immédiate des commerces et des transports.
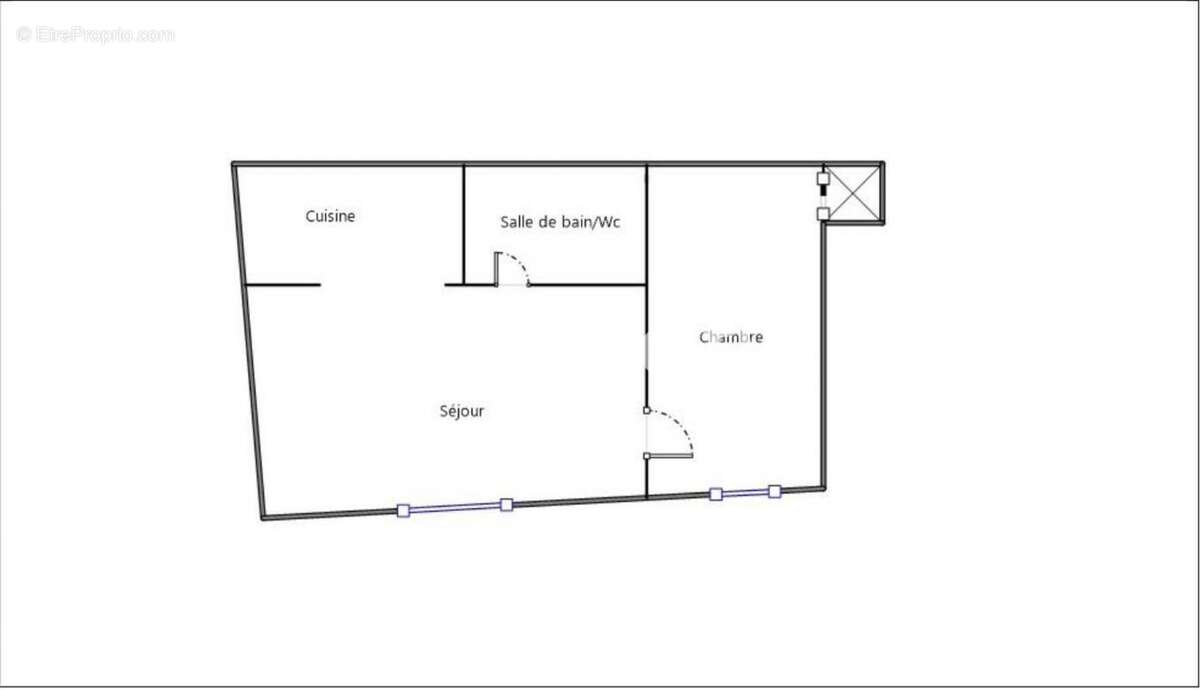
Il se compose d'une pièce de vie, cuisine ouverte, une chambre et salle d'eau.

Proposition d'ameublement photo 5 et 6

Pour en savoir plus ou organiser une visite, contactez-nous.
Les informations sur les risques auxquels ce bien est exposé sont disponibles sur le site Georisque : georisques. gouv. fr
Patricia Villacampa - EI - est Agent Commercial mandataire en immobilier, immatriculé au Registre Spécial des Agents Commerciaux du Tribunal de Commerce de Bordeaux sous le n°884155300.
Siège social du mandant : effiCity, 48 avenue de Villiers - 75017 PARIS - Société par Actions Simplifiée, société au capital de 132 373,05 euros, immatriculée au RCS Paris 497 617 746 et titulaire de la Carte professionnelle CPI 75[Coordonnées masquées]02 025 - CCI Paris IDF - Caisse de Garantie : GALIAN Assurances 89 rue de la Boétie 75008 Paris
Voir plus

Référence: 178106
Honoraires à la charge du vendeur.
Barème des honoraires
DPE
A
B
C
D
E
F
G
GES
A
B
C
D
E
F
G

Prêt immobilier

Vous souhaitez connaître votre capacité d’emprunt et trouver le meilleur crédit immobilier ?
Réaliser une simulation gratuite

Appartement à GUJAN-MESTRAS
Appartement à GUJAN-MESTRAS
Appartement à GUJAN-MESTRAS
Appartement à GUJAN-MESTRAS
Appartement à GUJAN-MESTRAS
Appartement à GUJAN-MESTRAS
Appartement à GUJAN-MESTRAS
Appartement à GUJAN-MESTRAS
Ce site est protégé par reCAPTCHA la Politique de confidentialité et les Conditions d’utilisation de Google s’appliquent.
Obtenir un prêt immobilier au meilleur taux ?

En poursuivant votre navigation sans modifier vos paramètres, vous acceptez l'utilisation de cookies susceptibles de réaliser des statistiques de visite. Cliquez ici pour plus d'informations