Terrain 2079m² à dadonville

— Dadonville 45300 —
77 000 €
2 079 m²

EXCLUSIVITE-TERRAIN CONSTRUCTIBLE-2079m²
En exclusivité, terrain constructible de 2079m² a fort potentiel.
Non seulement, ce terrain se distingue par une vue exceptionnelle, mais il offre un fort potentiel de constructibilité!!!
Ce terrain est en zone UD, possibilité de construire 40% de sa surface soit 831,6m² de surface plancher (2079/0,4), et sur 9m au faitage, soit R+1+C( rez de chaussée, 1er étage et combles).
Sa façade est de 20m...
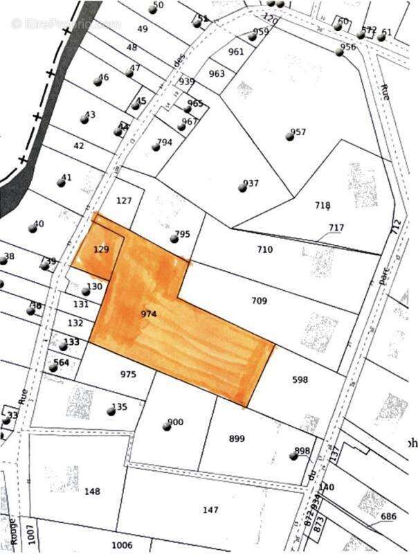
Parcelles cadastrales A129 et A 974
Ce terrain est donc pour un particulier voulant construire une vaste demeure, un promoteur voulant construire un immeuble ou un constructeur de maison individuel, ou...
Ne loupez surtout pas cet opportunité!!!
Les informations sur les risques auxquels ce bien est exposé sont disponibles sur le site Georisque : georisques. gouv. fr
Carl Kayanakis - EI - est Agent Commercial mandataire en immobilier, immatriculé au Registre Spécial des Agents Commerciaux du Tribunal de Commerce de Évry-Courcouronnes sous le n°838391548.
Siège social du mandant : effiCity, 48 avenue de Villiers - 75017 PARIS - Société par Actions Simplifiée, société au capital de 132 373,05 euros, immatriculée au RCS Paris 497 617 746 et titulaire de la Carte professionnelle CPI 75[Coordonnées masquées]02 025 - CCI Paris IDF - Caisse de Garantie : GALIAN Assurances 89 rue de la Boétie 75008 Paris
Voir plus

Référence: 178062
Honoraires à la charge du vendeur.
Barème des honoraires

Prêt immobilier

Vous souhaitez connaître votre capacité d’emprunt et trouver le meilleur crédit immobilier ?
Réaliser une simulation gratuite

Terrain à DADONVILLE
Terrain à DADONVILLE
Terrain à DADONVILLE
Terrain à DADONVILLE
Terrain à DADONVILLE
Terrain à DADONVILLE
Ce site est protégé par reCAPTCHA la Politique de confidentialité et les Conditions d’utilisation de Google s’appliquent.
Obtenir un prêt immobilier au meilleur taux ?

En poursuivant votre navigation sans modifier vos paramètres, vous acceptez l'utilisation de cookies susceptibles de réaliser des statistiques de visite. Cliquez ici pour plus d'informations