Bénéficiez des services de nos partenaires locaux soigneusement sélectionnés
pour vous accompagner dans votre parcours d'achat immobilier

Appartement 2p - clamart

— Clamart 92140 —
299 000 €
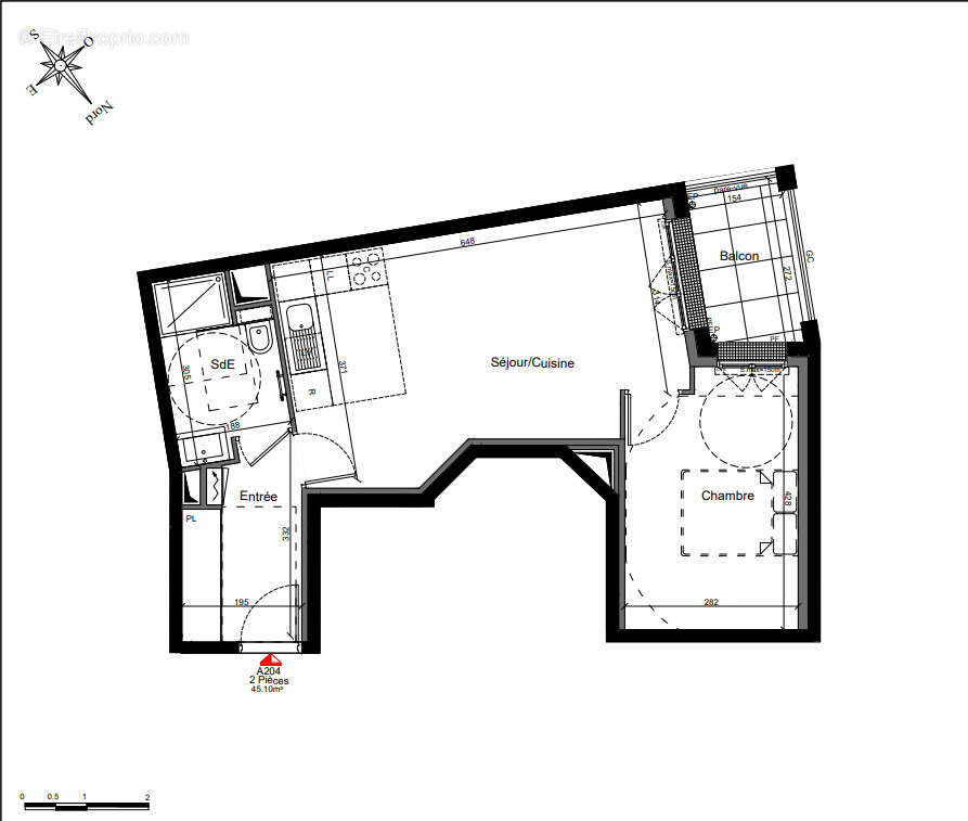
45 m²
2 pièces
balcon/terrasse

Nos partenaires locaux
Découvrez un nouveau programme immobilier d’exception niché au calme, en retrait de l’avenue du Général de Gaulle à Clamart. Dans un environnement résidentiel, à deux pas des écoles (de la crèche au lycée), des équipements sportifs et culturels, et à proximité des espaces verts parc Robert Auzelle à 800 mètres et Bois de Clamart à seulement 1 km cette résidence allie confort, accessibilité et qualité de vie.
Inspirée du style Art Déco, l’architecture raffinée met en valeur une élégante façade en pierre de taille. La résidence propose 56 appartements allant du studio au 5 pièces duplex, tous prolongés par des espaces extérieurs : jardins privatifs, balcons ou terrasses plein ciel.
Le 2P proposé, situé au 2e étage, est composé d'un séjour/cuisine ouvert sur un espace extérieur, d'une chambre et d'une salle d'eau.
Idéalement desservi, le tramway T6 station « Pavé Blanc » se trouve à moins de 200 mètres, facilitant vos déplacements vers Châtillon-Montrouge (métro ligne 13) et toute la métropole parisienne.
Un cadre de vie recherché, une architecture élégante, un environnement verdoyant et des prestations de qualité : une adresse rare à Clamart, à découvrir sans tarder.
Voir plus

Bien en copropriété. Nombre de lots : 100.
Barème des honoraires

Prêt immobilier

Vous souhaitez connaître votre capacité d’emprunt et trouver le meilleur crédit immobilier ?
Réaliser une simulation gratuite

Appartement à CLAMART
Appartement à CLAMART
Appartement à CLAMART
Appartement à CLAMART
Appartement à CLAMART
Ce site est protégé par reCAPTCHA la Politique de confidentialité et les Conditions d’utilisation de Google s’appliquent.
Obtenir un prêt immobilier au meilleur taux ?

En poursuivant votre navigation sans modifier vos paramètres, vous acceptez l'utilisation de cookies susceptibles de réaliser des statistiques de visite. Cliquez ici pour plus d'informations