Studio duplex rénové de 28.47m² proche des pistes

— Mont-De-Lans 38860 —
192 300 €
28 m²
1 pièce

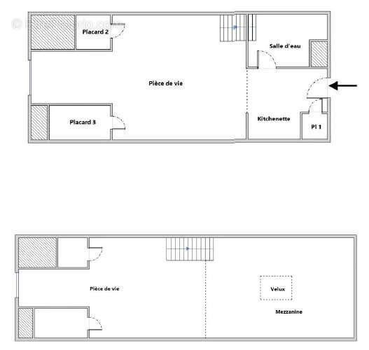
Découvrez ce studio duplex rénové de 28,47 m², idéalement situé à deux pas de la remontée mécanique de Vallée Blanche. Il offre un cadre de vie parfait pour les amoureux de la montagne.

Ce bien se compose d’une cuisine équipée, d’une salle de bains avec douche et WC, d’une pièce de vie avec un canapé convertible, d’une mezzanine avec 5 couchages, ainsi que d’un casier à skis.

Le ravalement des façades est déjà financé et programmé pour 2025-2026.

Contactez-nous pour plus d’informations ou pour organiser une visite !
Voir plus

Référence: 86077302
DPE
A
B
C
D
E
F
G
GES
A
B
C
D
E
F
G

Prêt immobilier

Vous souhaitez connaître votre capacité d’emprunt et trouver le meilleur crédit immobilier ?
Réaliser une simulation gratuite

Appartement à MONT-DE-LANS
Appartement à MONT-DE-LANS
Appartement à MONT-DE-LANS
Appartement à MONT-DE-LANS
Appartement à MONT-DE-LANS
Appartement à MONT-DE-LANS
Appartement à MONT-DE-LANS
Appartement à MONT-DE-LANS
Appartement à MONT-DE-LANS
Appartement à MONT-DE-LANS
Appartement à MONT-DE-LANS
Appartement à MONT-DE-LANS
Ce site est protégé par reCAPTCHA la Politique de confidentialité et les Conditions d’utilisation de Google s’appliquent.
Obtenir un prêt immobilier au meilleur taux ?

En poursuivant votre navigation sans modifier vos paramètres, vous acceptez l'utilisation de cookies susceptibles de réaliser des statistiques de visite. Cliquez ici pour plus d'informations