Bénéficiez des services de nos partenaires locaux soigneusement sélectionnés
pour vous accompagner dans votre parcours d'achat immobilier

Lmnp - appartement carquefou 1 pièce(s) 27 m2, et parking

— Carquefou 44470 —
82 720 €
27 m²
1 pièce
parkingbalcon/terrasseascenseur

Nos partenaires locaux
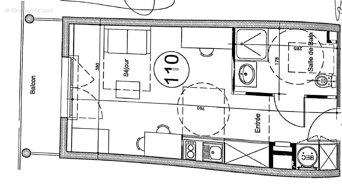
CARQUEFOU aux espaces de Maubreuil - Studio de 27m², vendu en LMNP - Avec un positionnement lié à la mobilité des entreprises et de ses collaborateurs, un emplacement stratégique en péri-urbain et non hyper centre des villes, pour répondre à la demande locative, bail commercial ferme offrant des loyers garantis, même en cas de vacance locative.
La Suite comprend au premier étage sur 4 niveaux, entrée, salle d'eau, wc, séjour avec coin cuisine, balcon, parking aérien.
82 720 euros soit 10% TTC (7520 euros) d'honoraires à la charge de
l'acquéreur, soit 75 200 euros Hors honoraires.
Pour visiter et vous accompagner dans votre projet, contactez Georges-Henri NOMARI, au [Coordonnées masquées] ou par courriel à [Coordonnées masquées]
Selon l'article L.561.5 du Code Monétaire et Financier, pour l'organisation de la visite, la présentation d'une pièce d'identité vous sera demandée.
Cette vente est garantie 12 mois.
Cette présente annonce a été rédigée sous la responsabilité éditoriale de Georges-Henri NOMARI agissant en qualité de conseiller immobilier indépendant sous portage salarial auprès de la SAS PROPRIETES PRIVEES, au capital de 44 920 euros, ZAC LE CHÊNE FERRÉ - 44 ALLÉE DES CINQ CONTINENTS 44120 VERTOU; SIRET 487 624 777 00040, RCS Nantes. Carte professionnelle Transactions sur immeubles et fonds de commerce (T) et Gestion immobilière (G) n° CPI 44[Coordonnées masquées]10 388 délivrée par la CCI Nantes - Saint Nazaire. Compte séquestre n°3[Coordonnées masquées] BPA SAINT-SEBASTIEN-SUR-LOIRE (44230) ; Garantie GALIAN - 89 rue de la Boétie, 75008 Paris - n°28137 J pour 2 000 000 euros pour T et 120 000 euros pour G. Assurance responsabilité civile professionnelle par MMA Entreprise n° de police 120.137.405
Mandat réf : 412229NOG (10.00 % honoraires TTC à la charge de l'acquéreur.)
Copropriété de 226 lots ().

Charges annuelles : 833 euros.
Voir plus

Référence: 412229NOG
Bien en copropriété. Nombre de lots : 226. Charges de copropriété : 69 €.
Honoraires d'agence de 10% à la charge de l'acquéreur
DPE
A
B
C
D
E
F
G
GES
A
B
C
D
E
F
G

Prêt immobilier

Vous souhaitez connaître votre capacité d’emprunt et trouver le meilleur crédit immobilier ?
Réaliser une simulation gratuite

Appartement à CARQUEFOU
Appartement à CARQUEFOU
Appartement à CARQUEFOU
Appartement à CARQUEFOU
Appartement à CARQUEFOU
Ce site est protégé par reCAPTCHA la Politique de confidentialité et les Conditions d’utilisation de Google s’appliquent.
Obtenir un prêt immobilier au meilleur taux ?

En poursuivant votre navigation sans modifier vos paramètres, vous acceptez l'utilisation de cookies susceptibles de réaliser des statistiques de visite. Cliquez ici pour plus d'informations