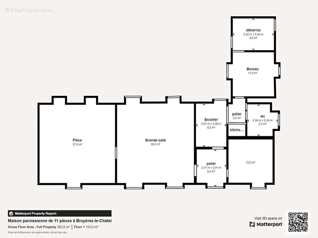
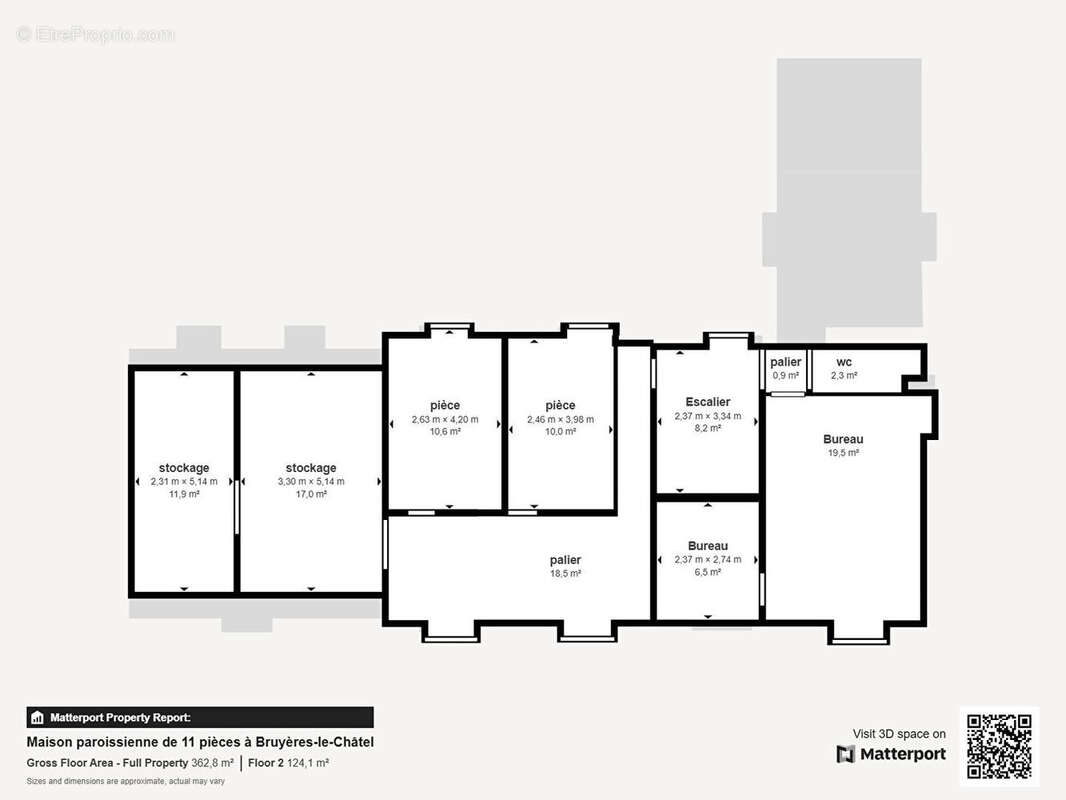
Maison paroissienne de 11 pièces à bruyères-le-châtel

— Bruyeres-Le-Chatel 91680 —
399 900 €
340 m² / 746 m²
11 pièces
jardin

IDEAL INVESTISSEUR ou pour maison bi-familiale ! Cette demeure du 18ème siècle située à Bruyères-le-Châtel comprenant 11 pièces réparties sur 3 étages servait auparavant de maison paroissienne et école. Avec ses de 340m² environ , elle est entièrement à réaménager pour la transformer en maison d'habitation. Possibilité de créer plusieurs logements indépendants avec jardin et places de stationnement. Les fenêtres sont déjà en double vitrage PVC et les volets sont en PVC au RDC et en bois à l'étage. Chauffage au gaz de ville A pieds des commodités et du centre-ville. N'hésitez pas à nous contacter pour plus de renseignements. Le prix de ce bien est fixé à 399 900 euros, les honoraires sont à la charge du vendeur. Vous souhaitez visiter, prenez rdv avec l'un de nos conseillers. Référence : 015
Voir plus

Référence: 15
Honoraires à la charge du vendeur.
DPE
A
B
C
D
E
F
G
GES
A
B
C
D
E
F
G

Prêt immobilier

Vous souhaitez connaître votre capacité d’emprunt et trouver le meilleur crédit immobilier ?
Réaliser une simulation gratuite

Maison à BRUYERES-LE-CHATEL
Maison à BRUYERES-LE-CHATEL
Maison à BRUYERES-LE-CHATEL
Maison à BRUYERES-LE-CHATEL
Maison à BRUYERES-LE-CHATEL
Maison à BRUYERES-LE-CHATEL
Maison à BRUYERES-LE-CHATEL
Maison à BRUYERES-LE-CHATEL
Maison à BRUYERES-LE-CHATEL
Maison à BRUYERES-LE-CHATEL
Maison à BRUYERES-LE-CHATEL
Maison à BRUYERES-LE-CHATEL
Maison à BRUYERES-LE-CHATEL
Maison à BRUYERES-LE-CHATEL
Maison à BRUYERES-LE-CHATEL
Maison à BRUYERES-LE-CHATEL
Maison à BRUYERES-LE-CHATEL
Maison à BRUYERES-LE-CHATEL
Ce site est protégé par reCAPTCHA la Politique de confidentialité et les Conditions d’utilisation de Google s’appliquent.
Obtenir un prêt immobilier au meilleur taux ?

En poursuivant votre navigation sans modifier vos paramètres, vous acceptez l'utilisation de cookies susceptibles de réaliser des statistiques de visite. Cliquez ici pour plus d'informations