Bénéficiez des services de nos partenaires locaux soigneusement sélectionnés
pour vous accompagner dans votre parcours d'achat immobilier

Appartement 44m² à grenoble

— Grenoble 38000 —
115 000 €
44 m²
2 pièces
balcon/terrasse

Nos partenaires locaux
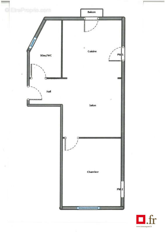
IMMOSQUARE Grenoble vous propose à la vente sur GRENOBLE, 19 rue Ampère, un F2 de 44,40 m² + balcon rénové de belle façon récemment. Il est situé dans un immeuble de 1940, au 2ème étage sans ascenseur. Il se compose d'une pièce principale carrelée de 22,15 m² avec une cuisine équipée moderne, d'une petite entrée avec placard, d'une belle chambre parquetée de 14, 28 m² avec placard et d'une jolie salle de douche avec fenêtre, sèche-serviettes et wc. fenêtres en pvc - chauffe-eau plat - poss
installer climatisation - calme et toutes commodités. cave et local à vélos classe énergie G DPE F en janvier 2026 528 € charges/an 25 lots 0[Coordonnées masquées] [Coordonnées masquées]

Honoraires à la charge du vendeur. Dans une copropriété de 25 lots. Aucune procédure n'est en cours. Classe énergie G, Classe climat C Logement à consommation énergétique excessive. Montant estimé des dépenses annuelles d'énergie pour un usage standard : entre 1620.00 € et 2220.00 € sur les années 2021, 2022 et 2023 (abonnements compris). Les informations sur les risques auxquels ce bien est exposé sont disponibles sur le site Géorisques : georisques.gouv.fr.
Voir plus

Référence: 3679-IMMOSQUARE38
Bien en copropriété. Nombre de lots : 25.
Honoraires à la charge du vendeur.
DPE
A
B
C
D
E
F
G
GES
A
B
C
D
E
F
G

Prêt immobilier

Vous souhaitez connaître votre capacité d’emprunt et trouver le meilleur crédit immobilier ?
Réaliser une simulation gratuite

Appartement à GRENOBLE
Appartement à GRENOBLE
Appartement à GRENOBLE
Appartement à GRENOBLE
Appartement à GRENOBLE
Appartement à GRENOBLE
Appartement à GRENOBLE
Appartement à GRENOBLE
Ce site est protégé par reCAPTCHA la Politique de confidentialité et les Conditions d’utilisation de Google s’appliquent.
Obtenir un prêt immobilier au meilleur taux ?

En poursuivant votre navigation sans modifier vos paramètres, vous acceptez l'utilisation de cookies susceptibles de réaliser des statistiques de visite. Cliquez ici pour plus d'informations