Bénéficiez des services de nos partenaires locaux soigneusement sélectionnés
pour vous accompagner dans votre parcours d'achat immobilier

Voir tous les partenaires locaux

Appartement 69m² à bordeaux

— Bordeaux 33000 —
227 000 €
69 m²
2 pièces

Nos partenaires locaux
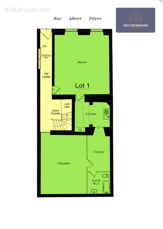
À VENDRE – Plateau brut à aménager – Bordeaux Chartrons / Paul Doumer
Rare sur le secteur !
Situé rue Albert Pitres, à deux pas de la place Paul Doumer et de toutes les commodités (tramway, commerces, écoles), ce plateau brut de plain-pied d'environ 70 m² offre un potentiel exceptionnel.

Avec deux entrées indépendantes, il se prête parfaitement à un projet mixte habitation / activité professionnelle ou à l'installation d'un cabinet pour professions libérales, dans un quartier dynamique et recherché des Chartrons.

Caractéristiques principales :
- Surface : environ 70 m²
- Plateau à aménager selon vos besoins
- Deux entrées indépendantes
- En rez-de-chaussée sur rue calme
- À proximité immédiate du tramway (ligne C - Paul Doumer)
- Petite copropriété avec faibles charges

Une opportunité rare pour créer un lieu de vie ou de travail sur-mesure dans l'un des quartiers les plus prisés de Bordeaux.

Pour plus d'informations ou organiser une visite, contactez-nous dès maintenant.

Honoraires à la charge du vendeur. Dans une copropriété de 4 lots. Aucune procédure n'est en cours. Classe énergie D, Classe climat B Montant estimé des dépenses annuelles d'énergie pour un usage standard : entre 1100.00 € et 1520.00 € sur les années 2021, 2022 et 2023 (abonnements compris). Les informations sur les risques auxquels ce bien est exposé sont disponibles sur le site Géorisques : georisques.gouv.fr.

Votre conseiller NÉO PATRIMOINE : Anne Martinez Charpentier
Agent commercial (Entreprise individuelle)
RSAC 523299386
Voir plus

Référence: 258-NEOPATRIMOINE63
Bien en copropriété. Nombre de lots : 4.
Honoraires à la charge du vendeur.
Barème des honoraires
DPE
A
B
C
D
E
F
G
GES
A
B
C
D
E
F
G

Prêt immobilier

Vous souhaitez connaître votre capacité d’emprunt et trouver le meilleur crédit immobilier ?
Réaliser une simulation gratuite

Appartement à BORDEAUX
Appartement à BORDEAUX
Appartement à BORDEAUX
Appartement à BORDEAUX
Appartement à BORDEAUX
Appartement à BORDEAUX
Appartement à BORDEAUX
Appartement à BORDEAUX
Appartement à BORDEAUX
Ce site est protégé par reCAPTCHA la Politique de confidentialité et les Conditions d’utilisation de Google s’appliquent.
Obtenir un prêt immobilier au meilleur taux ?

En poursuivant votre navigation sans modifier vos paramètres, vous acceptez l'utilisation de cookies susceptibles de réaliser des statistiques de visite. Cliquez ici pour plus d'informations