Maison 181m² à vezeronce-curtin

— Vezeronce-Curtin 38510 —
370 000 €
181 m² / 1 906 m²
5 pièces
parkingbalcon/terrassejardin

38510 - VEZERONCE-CURTIN - MAISON R+1 HORS D'EAU HORS D'AIR - 181M² - TERRASSE - GARAGE - GRAND TERRAIN 1906m2

Kim Mattera et Efficity, l'agence qui estime votre bien en ligne, vous proposent cette maison R+1 vendue hors d'eau, hors d'air, située sur la commune de Vézeronce-Curtin.
A 15 minutes de l'entrée d'autoroute de la Tour du Pin, à 5 minutes de Morestel et à proximité immédiate des commerces (boulangerie, pharmacie, supérette...) et école du village, vous bénéficiez des avantages de la campagne sans subir ses contraintes.

Vous hésitiez entre faire l'acquisition d'une maison récente et la possibilité de construire votre maison ?
Cette maison hors d'eau, hors d'air est la solution idéale pour allier les deux.
Avec ses 181m2 habitables et son garage de 35,55m2, elle vous offre une base solide pour concevoir un intérieur qui vous ressemble, tout en évitant les contraintes d'une construction de A à Z.

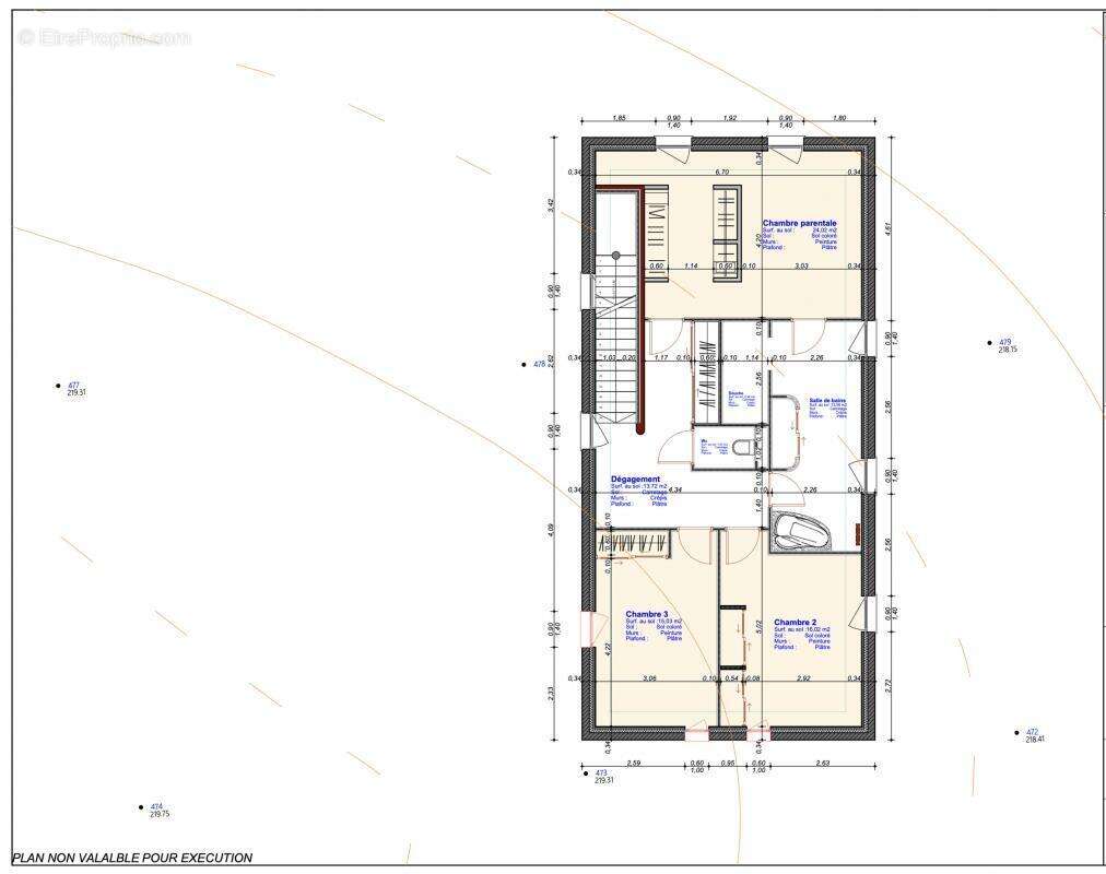
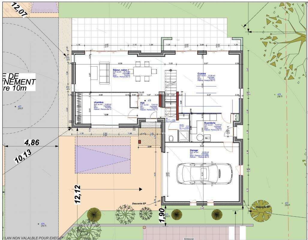
De conception moderne, avec des volumes généreux : Entrée avec placard, séjour avec cuisine ouverte de plus de 58m2, 4 chambres dont une en rez de chaussée de plus de 14m2 et une en suite parentale de 24m2, une buanderie, une salle d'eau, une salle de bain et deux wc séparés.
Un garage de 35,55m2, une belle terrasse abritée exposée Ouest et un toit terrasse exposé Sud
Voilà ce que l'on vous propose!
Néanmoins, rien n'est figé. Vous pourrez adapter la configuration des lieux comme bon vous semble... De manière à ce qu'elle vous ressemble.
Et créer votre cocon familial.

Côté extérieur, une confortable terrasse 30m2, une place de parking privative et un vaste jardin de 1906m2 partiellement clôturé pour laisser libre cours à votre imagination.

Ses avantages :

- Localisation : proximité commerces, école et à 5 minutes de Morestel
- Maison neuve hors d'eau hors d'air sur GRAND TERRAIN
- Terrassement et raccordements aux réseaux et Tout à l'Egout
- Façade crépie, menuiseries anthracites, volets roulants électriques ...
- Terrasse et garage
- Plans intérieurs à disposition à ajuster

N'hésitez pas à m'appeler afin que l'on échange sur votre projet.
Les informations sur les risques auxquels ce bien est exposé sont disponibles sur le site Georisque : georisques. gouv. fr
Kim Mattera - EI - est Agent Commercial mandataire en immobilier, immatriculé au Registre Spécial des Agents Commerciaux du Tribunal de Commerce de Vienne sous le n°893369280.
Siège social du mandant : effiCity, 48 avenue de Villiers - 75017 PARIS - Société par Actions Simplifiée, société au capital de 132 373,05 euros, immatriculée au RCS Paris 497 617 746 et titulaire de la Carte professionnelle CPI 75[Coordonnées masquées]02 025 - CCI Paris IDF - Caisse de Garantie : GALIAN Assurances 89 rue de la Boétie 75008 Paris
Voir plus

Référence: 171013
Honoraires à la charge du vendeur.
Barème des honoraires

Prêt immobilier

Vous souhaitez connaître votre capacité d’emprunt et trouver le meilleur crédit immobilier ?
Réaliser une simulation gratuite

Maison à VEZERONCE-CURTIN
Maison à VEZERONCE-CURTIN
Maison à VEZERONCE-CURTIN
Maison à VEZERONCE-CURTIN
Maison à VEZERONCE-CURTIN
Maison à VEZERONCE-CURTIN
Ce site est protégé par reCAPTCHA la Politique de confidentialité et les Conditions d’utilisation de Google s’appliquent.
Obtenir un prêt immobilier au meilleur taux ?

En poursuivant votre navigation sans modifier vos paramètres, vous acceptez l'utilisation de cookies susceptibles de réaliser des statistiques de visite. Cliquez ici pour plus d'informations