Bénéficiez des services de nos partenaires locaux soigneusement sélectionnés
pour vous accompagner dans votre parcours d'achat immobilier

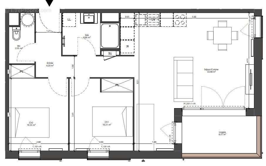
Appartement 65m² à le taillan-medoc

— Le Taillan-Medoc 33320 —
244 000 €
65 m²
3 pièces
parkingbalcon/terrasseaccès handicapé

Nos partenaires locaux
Sous compromis : TERRASSE ET SÉJOUR BAIGNÉS DE LUMIÈRE AU COEUR D'UN DOMAINE BOISÉ

À quelques kilomètres de Bordeaux, Le Taillan-Médoc offre un cadre de vie recherché, entre vitalité urbaine et nature préservée. Cette commune prisée bénéficie d'une excellente connexion à la métropole grâce à un réseau de transports en commun performant, tout en ouvrant les portes du parc naturel régional du Médoc et de ses paysages emblématiques : forêts, lacs, plages océanes et prestigieux domaines viticoles.
Nichée au coeur d'un environnement boisé, votre résidence profite d'un emplacement privilégié, à seulement quelques minutes du centre-ville, des commerces, des établissements scolaires et des équipements sportifs. Une adresse idéale pour concilier vie de famille, tranquillité et accès à toutes les commodités.

C'est dans ce cadre idyllique que se trouve votre appartement au dernier étage de la résidence, un confortable 3 pièces de 65 m². Profitez de sa vaste pièce de vie de 33 m², un espace baigné de lumière grâce à son exposition Sud-Est et à sa grande baie vitrée s'ouvrant sur une terrasse de 6 m². Ici, l'espace et la luminosité sont une invitation à profiter de chaque moment avec vos proches, tout au long de l'année.
Côté nuit, votre nouvel appartement dispose de deux chambres intimistes avec placards pour davantage de praticité, ainsi que d'une grande salle d'eau moderne, prévue également pour accueillir une buanderie, et d'un WC indépendant.

Enfin, pour toujours plus de confort, ce bien est soumis à la réglementation RE 2020, vous garantissant un haut niveau de confort et de performance phonique et thermique. Le calme et les économies au quotidien n'attendent plus que vous.

De plus, une place de parking complète ce bien (en sus : 15 000 €).

-Aucun travaux à prévoir
-Frais de notaire réduits
-Garanties
-RE 2020
-Bientôt Disponible
-...

TERRASSE ET SÉJOUR BAIGNÉS DE LUMIÈRE AU COEUR D'UN DOMAINE BOISÉ

Honoraires à la charge du vendeur. Dans une copropriété de 25 lots. Aucune procédure n'est en cours. DPE en cours. Les informations sur les risques auxquels ce bien est exposé sont disponibles sur le site Géorisques : georisques.gouv.fr.

Votre conseiller RH Patrimoine : Maxime HERVE
Agent commercial (Entreprise individuelle)
RSAC 133095555 J
RCP 13309666 J
Voir plus

Référence: VA3113-RHPATRI
Bien en copropriété. Nombre de lots : 25.
Honoraires à la charge du vendeur.
Barème des honoraires

Prêt immobilier

Vous souhaitez connaître votre capacité d’emprunt et trouver le meilleur crédit immobilier ?
Réaliser une simulation gratuite

Appartement à LE TAILLAN-MEDOC
Appartement à LE TAILLAN-MEDOC
Appartement à LE TAILLAN-MEDOC
Appartement à LE TAILLAN-MEDOC
Ce site est protégé par reCAPTCHA la Politique de confidentialité et les Conditions d’utilisation de Google s’appliquent.
Obtenir un prêt immobilier au meilleur taux ?

En poursuivant votre navigation sans modifier vos paramètres, vous acceptez l'utilisation de cookies susceptibles de réaliser des statistiques de visite. Cliquez ici pour plus d'informations