Bénéficiez des services de nos partenaires locaux soigneusement sélectionnés
pour vous accompagner dans votre parcours d'achat immobilier

Maison 81m² à carcassonne

— Carcassonne 11000 —
89 900 €
82 m²
4 pièces
parkingbalcon/terrassepiscine

Nos partenaires locaux
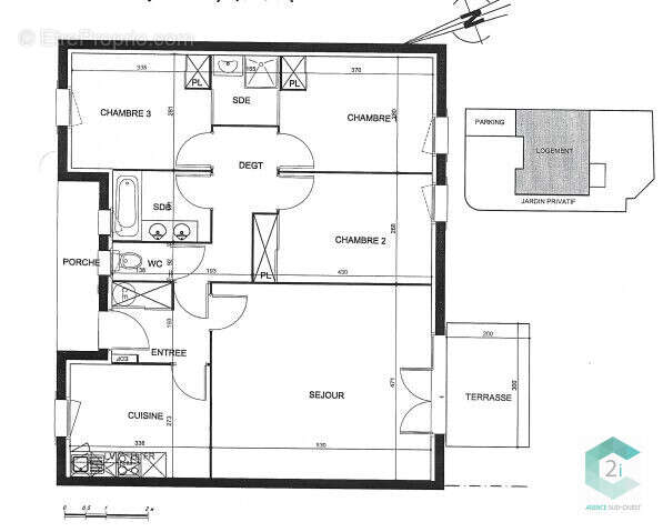
Carcassonne (11000) – Secteur MontredonVilla T4 – 82 m² – Plain-pied – Vendue louée – Rentabilité brute : 9.10 %

Située dans le secteur recherché de Montredon à Carcassonne, cette villa de plain-pied de 82 m² offre un cadre de vie agréable avec son jardin privatif et ses emplacements de stationnement. Bien agencée, elle se compose de :Une entrée avec placard,
Une cuisine aménagée indépendante,
Un séjour lumineux de 25 m² ouvrant sur une terrasse exposée sud-ouest et un jardin de plus de 180 m²,
Trois chambres avec placards,
Une salle de bains avec double vasque,
Une salle d'eau attenante à deux des chambres,
Un WC séparé.
Deux places de parking aérien, situées devant et en face de la villa, complètent ce bien.

Vendu loué :Le locataire est en place depuis mars 2019, sans aucun incident de paiement.

Éléments financiers :
Loyer : 644,57 € hors charges + 39 € de provisions sur charges, soit 683,57 € CC/mois
Charges de copropriété : environ 140 €/mois
Taxe foncière : 1 686 €/an (dont 230 € de TOM)
Honoraires à la charge du vendeur
Travaux récents :Chauffe-eau remplacé début 2025
Peintures partiellement refaites en 2019
Façades nettoyées récemment
Un bien idéal pour un investisseur à la recherche d'un placement locatif sûr et rentable.
Besoin de plus d'informations ? Contactez-nous !

Honoraires à la charge du vendeur. Dans une copropriété de 249 lots. Aucune procédure n'est en cours. Classe énergie C, Classe climat A Montant estimé des dépenses annuelles d'énergie pour un usage standard : entre 990.00 € et 1390.00 € sur les années 2021, 2022 et 2023 (abonnements compris). Les informations sur les risques auxquels ce bien est exposé sont disponibles sur le site Géorisques : georisques.gouv.fr.
Voir plus

Référence: VM399-C2ISUDOUEST2
Bien en copropriété. Nombre de lots : 249.
Honoraires à la charge du vendeur.
Barème des honoraires
DPE
A
B
C
D
E
F
G
GES
A
B
C
D
E
F
G

Prêt immobilier

Vous souhaitez connaître votre capacité d’emprunt et trouver le meilleur crédit immobilier ?
Réaliser une simulation gratuite

Maison à CARCASSONNE
Maison à CARCASSONNE
Maison à CARCASSONNE
Maison à CARCASSONNE
Maison à CARCASSONNE
Maison à CARCASSONNE
Maison à CARCASSONNE
Maison à CARCASSONNE
Maison à CARCASSONNE
Ce site est protégé par reCAPTCHA la Politique de confidentialité et les Conditions d’utilisation de Google s’appliquent.
Obtenir un prêt immobilier au meilleur taux ?

En poursuivant votre navigation sans modifier vos paramètres, vous acceptez l'utilisation de cookies susceptibles de réaliser des statistiques de visite. Cliquez ici pour plus d'informations