Bénéficiez des services de nos partenaires locaux soigneusement sélectionnés
pour vous accompagner dans votre parcours d'achat immobilier

Maison de 89 m2 + garage la grande motte

— La Grande-Motte 34280 —
489 000 €
89 m² / 219 m²
4 pièces
parkingbalcon/terrassejardin

Nos partenaires locaux
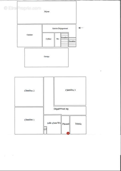
Maison type Chalandonnette à La Grande Motte, quartier des villas, d'environ 89 m2 sur une parcelle de 219 m2 piscinable - Environnement très calme - Au rez-de-chaussée : entrée, buanderie, toilettes, salon-séjour traversant, et cuisine séparée - A l'étage : un dressing, 3 chambres, une salle d'eau avec toilettes - Chaudière gaz, double vitrage, volets roulants électriques, radiateurs neufs, isolation des combles, faitage toit récent - Garage de 14 m2 - Rafraichissements à prévoir.
Les informations sur les risques auxquels ce bien est exposé sont disponibles sur le site Géorisques : www. georisques. gouv. fr Plus de renseignements ? Sophie ZANGRANDI au [Coordonnées masquées]. Notre agence immobilière se tient à votre disposition pour tout achat, vente, location ou estimation d'appartement, de maison ou villa sur La Grande Motte. LES PYRAMIDES IMMOBILIER - 277 ave Robert Fages - CC Le Miramar. Estimations gratuites et sans engagement.
Voir plus

Référence: 1564
Bien en copropriété. Nombre de lots : 100.
Honoraires d'agence de 4.94% à la charge de l'acquéreur
Barème des honoraires
DPE
A
B
C
D
E
F
G
GES
A
B
C
D
E
F
G

Prêt immobilier

Vous souhaitez connaître votre capacité d’emprunt et trouver le meilleur crédit immobilier ?
Réaliser une simulation gratuite

Maison à LA GRANDE-MOTTE
Maison à LA GRANDE-MOTTE
Maison à LA GRANDE-MOTTE
Maison à LA GRANDE-MOTTE
Maison à LA GRANDE-MOTTE
Maison à LA GRANDE-MOTTE
Maison à LA GRANDE-MOTTE
Ce site est protégé par reCAPTCHA la Politique de confidentialité et les Conditions d’utilisation de Google s’appliquent.
Obtenir un prêt immobilier au meilleur taux ?

En poursuivant votre navigation sans modifier vos paramètres, vous acceptez l'utilisation de cookies susceptibles de réaliser des statistiques de visite. Cliquez ici pour plus d'informations