Bénéficiez des services de nos partenaires locaux soigneusement sélectionnés
pour vous accompagner dans votre parcours d'achat immobilier

Voir tous les partenaires locaux

Paris 16 - auteuil sud - appartement 6 p - 128 m2

— Paris-16e 75016 —
1 150 000 €
128 m²
6 pièces
ascenseur

Nos partenaires locaux
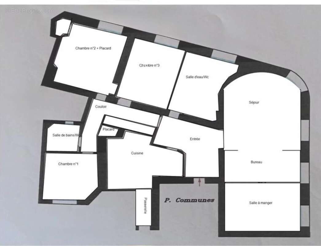
Paris 16 / Auteuil sud - Dans un bel immeuble haussmannien, nous vous proposons un appartement d'angle avec vue dégagée de 5/6 pièces, d'une surface de 127,46 m2 Carrez.

Celui-ci comprend : une entrée, un séjour d'angle avec de grandes fenêtres, un bureau et une salle à manger (poss. 4è chambre), avec parquet point de hongrie, moulures et cheminées, une chambre parentale avec sa salle de bains, deux chambres, une seconde salle de bains avec fenêtre, deux wc, une cuisine dinatoire séparée.

Appartement au 1er étage bénéficiant d'une belle hauteur sous plafond de 2,90 m et d'une vue dégagée. Plan fonctionnel et agréable.

Une grande cave (11 m2) complète ce bien, local à vélos.

Un vrai coup de coeur pour cet appartement offrant une belle triple réception, en bon état, bénéficiant d'une vue dégagée et d'une localisation recherchée, à proximité des commerces, des écoles et des transports (ligne 9, bus)

17 copropriétaires, aucune procédure en cours.
Voir plus

Référence: 85598727
Barème des honoraires
DPE
A
B
C
D
E
F
G
GES
A
B
C
D
E
F
G

Prêt immobilier

Vous souhaitez connaître votre capacité d’emprunt et trouver le meilleur crédit immobilier ?
Réaliser une simulation gratuite

Appartement à PARIS-16E
Appartement à PARIS-16E
Appartement à PARIS-16E
Appartement à PARIS-16E
Appartement à PARIS-16E
Appartement à PARIS-16E
Appartement à PARIS-16E
Appartement à PARIS-16E
Appartement à PARIS-16E
Appartement à PARIS-16E
Appartement à PARIS-16E
Appartement à PARIS-16E
Appartement à PARIS-16E
Appartement à PARIS-16E
Ce site est protégé par reCAPTCHA la Politique de confidentialité et les Conditions d’utilisation de Google s’appliquent.
Obtenir un prêt immobilier au meilleur taux ?

En poursuivant votre navigation sans modifier vos paramètres, vous acceptez l'utilisation de cookies susceptibles de réaliser des statistiques de visite. Cliquez ici pour plus d'informations