Maison de bourg avec dépendance requeil (72)

— Requeil 72510 —
148 400 €
99 m² / 1 610 m²
3 pièces
parkingjardin

Située au cœur de la commune de Requeil, à 5 minutes de Pontvallain et 15 minutes d'Ecommoy,

cette charmante maison de bourg de plain-pied vous offre un cadre de vie paisible avec un beau potentiel d'agrandissement ou d'investissement locatif.

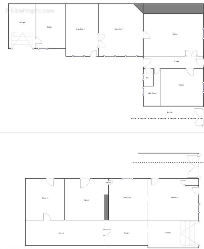
Une maison principale de 100 m² habitables, comprenant :
• Une cuisine aménagée,
• Un salon/séjour lumineux,
• Deux chambres en enfilade,
• Une salle d'eau,
• Un WC indépendant.

Attenant à la maison, vous trouverez également un garage, une chaufferie ainsi qu'un cellier offrant de beaux volumes de rangement.
Les menuiseries sont en PVC double vitrage, le chauffage est au fuel et l'assainissement est raccordé au tout-à-l'égout.

Par un joli porche fermé par une porte en bois, vous accédez à une agréable cour pavée et un jardin verdoyant, alimenté par un puits.

Un second bâtiment indépendant à fort potentiel d'environ 50 M2.

Cette dépendance attenante accessible également par la rue (garage et entrée indépendants), représente une véritable opportunité : extension de l'habitation principale, logement indépendant ou projet locatif.

Elle est composée de :
• Deux grandes pièces avec cheminées et points d'eau,
• Des menuiseries bois simple vitrage,
• Reliée au chauffage central existant.

Prestations complémentaires:
• Grenier aménageable
• Caves,
• Tableau électrique refait en 2021,
• Isolation des combles réalisée en 2019.

Une maison de caractère avec de nombreuses possibilités d'aménagement idéale pour une famille, un artisan ou un investisseur. Le charme de l'ancien, une belle surface de terrain et un fort potentiel d'évolution dans un cadre calme et convivial.

À visiter sans tarder ! Les honoraires d'agence sont à la charge de l'acquéreur, soit 6,00% TTC du prix hors honoraires.
Logement à consommation énergétique excessive : classe F
Les informations sur les risques auxquels ce bien est exposé sont disponibles sur le site Géorisques : www. georisques. gouv. fr.

Contactez Morgan BOUTTIER Entrepreneur Individuel, Agent commercial OptimHome (RSAC N°981 973 365 Greffe de LE MANS) [Coordonnées masquées] (réf. 588480 )
Voir plus

Référence: 830036311370
DPE
A
B
C
D
E
F
G
GES
A
B
C
D
E
F
G

Prêt immobilier

Vous souhaitez connaître votre capacité d’emprunt et trouver le meilleur crédit immobilier ?
Réaliser une simulation gratuite

Maison à REQUEIL
Maison à REQUEIL
Maison à REQUEIL
Maison à REQUEIL
Maison à REQUEIL
Maison à REQUEIL
Maison à REQUEIL
Maison à REQUEIL
Maison à REQUEIL
Maison à REQUEIL
Maison à REQUEIL
Maison à REQUEIL
Maison à REQUEIL
Maison à REQUEIL
Maison à REQUEIL
Maison à REQUEIL
Maison à REQUEIL
Maison à REQUEIL
Maison à REQUEIL
Maison à REQUEIL
Ce site est protégé par reCAPTCHA la Politique de confidentialité et les Conditions d’utilisation de Google s’appliquent.
Obtenir un prêt immobilier au meilleur taux ?

En poursuivant votre navigation sans modifier vos paramètres, vous acceptez l'utilisation de cookies susceptibles de réaliser des statistiques de visite. Cliquez ici pour plus d'informations