Maison 225m² à le mas-d'azil

— Le Mas-D'azil 09290 —
347 000 €
225 m² / 22 000 m²
7 pièces
balcon/terrassejardin

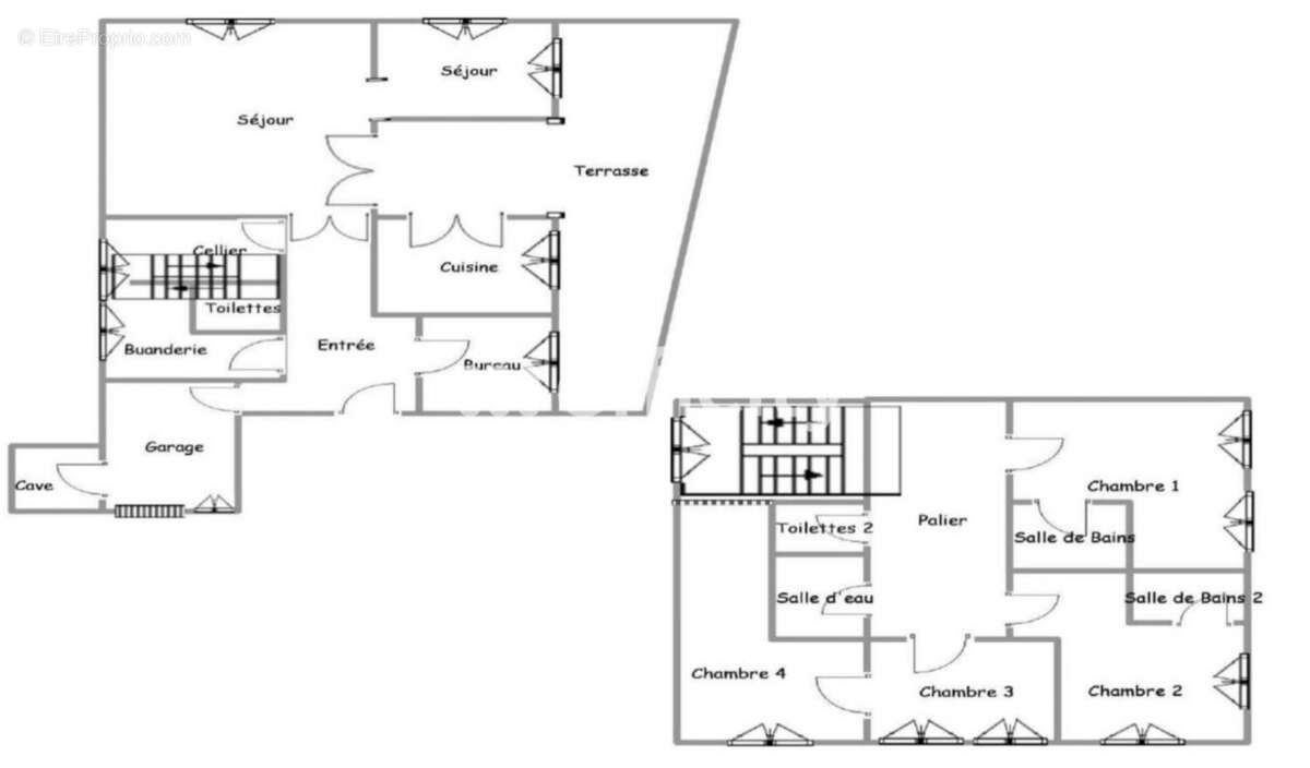
PROPRIETE - TRES BON ETAT - 2 HECTARES DE TERRES ATTENANTES - 4 CHAMBRES - UN BUREAU - 3 SALLES D'EAU - TERRASSE COUVERTE- 225 m² HABITABLE- GRAND GARAGE.

Efficity Pamiers vous propose de découvrir nichée au coeur de la verdure , dans un lieu calme et paisible,cette charmante villa de 225 m² ( hors garage) en trés bon état général , avec des volumes intéressants.

Au-rez-de-chaussé , une belle entrée au sol de marbre, s'ouvrant sur le bureau ( avec sa propre cheminée) pouvant également être une chambre selon les besoins.
Dans la continuité, une grande cuisine aménagée de 25 m² avec sa cheminée donnant sur la terrasse couverte et vue sur les terres.

Puis, une trés belle pièce , le séjour de 50 m² , lumineux , avec son salon de lecture séparé (cheminée indépendante) , le tout ouvert sur la terrasse ensoleillée, avec vue sur les terres . Espace propice à la détente et aux bons moments partagés.

Sur le meme niveau, une buanderie avec wc séparé, et un espace cellier.

A L'ETAGE,

4 belles chambres spacieuses et lumineuses avec du rangement,
Vous découvrirez ainsi deux suites d'environ 25 m² chacune avec salle de bain privative.
Puis 2 chambres avec une salle d'eau commune sur le palier et wc séparé. ( Possibilité de réaliser une troisième suite).

A l'extérieur, une terrasse d'environ 100 m² dont 21 m² sont couvert en dur et le store couvrant 20 m² supplémentaires.

Le tout exposé sud , niché au coeur de ses terres agricoles , avec la possibilité d'avoir ses chevaux ou autres animaux sur la parcelle.
Lieu paisible et calme.

Cette propriété réalisera vos projets que ce soit celui d'avoir une habitation confortable et familiale ou encore celui de monter un projets de tourisme avec acceuil d'hôtes.

N'attendez plus , nous vous attendons afin de vous la faire découvrir.
Les informations sur les risques auxquels ce bien est exposé sont disponibles sur le site Georisque : georisques. gouv. fr
Marion Isach - EI - est Agent Commercial mandataire en immobilier, immatriculé au Registre Spécial des Agents Commerciaux du Tribunal de Commerce de foix sous le n°883540619.
Siège social du mandant : effiCity, 48 avenue de Villiers - 75017 PARIS - Société par Actions Simplifiée, société au capital de 132 373,05 euros, immatriculée au RCS Paris 497 617 746 et titulaire de la Carte professionnelle CPI 75[Coordonnées masquées]02 025 - CCI Paris IDF - Caisse de Garantie : GALIAN Assurances 89 rue de la Boétie 75008 Paris
Voir plus

Référence: 187013
Honoraires à la charge du vendeur.
Barème des honoraires
DPE
A
B
C
D
E
F
G
GES
A
B
C
D
E
F
G

Prêt immobilier

Vous souhaitez connaître votre capacité d’emprunt et trouver le meilleur crédit immobilier ?
Réaliser une simulation gratuite

Maison à LE MAS-D'AZIL
Maison à LE MAS-D'AZIL
Maison à LE MAS-D'AZIL
Maison à LE MAS-D'AZIL
Maison à LE MAS-D'AZIL
Maison à LE MAS-D'AZIL
Maison à LE MAS-D'AZIL
Maison à LE MAS-D'AZIL
Maison à LE MAS-D'AZIL
Maison à LE MAS-D'AZIL
Maison à LE MAS-D'AZIL
Maison à LE MAS-D'AZIL
Maison à LE MAS-D'AZIL
Ce site est protégé par reCAPTCHA la Politique de confidentialité et les Conditions d’utilisation de Google s’appliquent.
Obtenir un prêt immobilier au meilleur taux ?

En poursuivant votre navigation sans modifier vos paramètres, vous acceptez l'utilisation de cookies susceptibles de réaliser des statistiques de visite. Cliquez ici pour plus d'informations