Bénéficiez des services de nos partenaires locaux soigneusement sélectionnés
pour vous accompagner dans votre parcours d'achat immobilier

Maison 'année 20' de 140 m2 avec jardin plein sud rue du rassat, clermont-ferrand

— Clermont-Ferrand 63000 —
368 000 €
140 m²
5 pièces
balcon/terrasse

Nos partenaires locaux
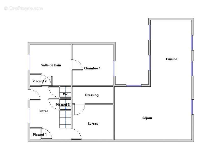
Maison 'Année 20' de 140 m2 avec jardin plein Sud Rue du Rassat, Clermont-Ferrand JAUDE Immobilier vous propose cette charmante maison 'Année 20', alliant le cachet de l’ancien au confort moderne, située dans un environnement résidentiel calme et recherché, rue du Rassat à Clermont-Ferrand.
Avec 140 m2 habitables, cette maison offre un cadre de vie idéal pour une famille.
En rez-de-jardin (104 m2) :
-Entrée accueillante avec carreaux de ciment d’époque, WC indépendants et rangements.
-Espace bureau/bibliothèque idéal pour le télétravail ou la lecture.
-Spacieuse et lumineuse pièce de vie de 50 m2 comprenant une grande cuisine dînatoire ouverte sur le jardin d’un côté et sur un petit patio de l’autre. Salon avec superbe cheminée insert également ouvert sur l'extérieur par grande baie vitrée.
-Suite parentale avec salle de bain privative (baignoire + douche), ouvrant également sur le patio.
À l’étage (38 m2) :
Deux grandes chambres mansardées (12 m2 et 11,5 m2), un espace bureau/chambre d’enfant (6,5 m2) et une salle d’eau avec WC.
Sous-sol :
-Grande cave offrant un espace de stockage ou de bricolage.
Le jardin, plat, clos et arboré, exposé plein Sud, véritable écrin de verdure, sera parfait pour profiter de moments en extérieur, pour les jeux des enfants ou des projets paysagers. La parcelle de 422 m2, piscinable, offre également la possibilité d’aménager un garage ou un carport.
Infos complémentaires :
-Chaudière gaz à condensation neuve (installée en 2025).
-Menuiseries bois double vitrage + PVC double vitrage.
-Maison saine et très bien entretenue.
Quartier résidentiel calme, à proximité immédiate de La Pardieu, des commerces, transports en commun (Ligne C) et écoles. Accès rapide aux autoroutes.
-Année de construction : années 1920 avec extension 1992 (salon séjour et cuisine)
-DPE / GES : D Chaudière gaz condensation neuve (2025)
Les coûts sont estimés en fonction des caractéristiques du logement et pour une utilisation standard sur 4 usages (chauffage, eau chaude sanitaire, éclairage, auxiliaires) entre 2 210 € et 3 040 € par an
-Quartier : Rue du Rassat, Clermont-Ferrand
-Taxe foncière : 1 963 €
Honoraires agence à la charge du vendeur.
Pour plus d’informations sur les risques auxquels ce bien est exposé, consultez le site Géorisques : www.georisques.gouv.fr (décret no2022-1289 du 1er octobre 2022).
Pour toute information ou visite, Véronique Hutin Négociatrice & Associée JAUDE Immobilier [Coordonnées masquées] [Coordonnées masquées]
Voir plus

Référence: 1624
Honoraires à la charge du vendeur.
Barème des honoraires
DPE
A
B
C
D
E
F
G
GES
A
B
C
D
E
F
G

Prêt immobilier

Vous souhaitez connaître votre capacité d’emprunt et trouver le meilleur crédit immobilier ?
Réaliser une simulation gratuite

Maison à CLERMONT-FERRAND
Maison à CLERMONT-FERRAND
Maison à CLERMONT-FERRAND
Maison à CLERMONT-FERRAND
Maison à CLERMONT-FERRAND
Maison à CLERMONT-FERRAND
Maison à CLERMONT-FERRAND
Maison à CLERMONT-FERRAND
Maison à CLERMONT-FERRAND
Maison à CLERMONT-FERRAND
Maison à CLERMONT-FERRAND
Maison à CLERMONT-FERRAND
Maison à CLERMONT-FERRAND
Maison à CLERMONT-FERRAND
Maison à CLERMONT-FERRAND
Maison à CLERMONT-FERRAND
Maison à CLERMONT-FERRAND
Maison à CLERMONT-FERRAND
Maison à CLERMONT-FERRAND
Ce site est protégé par reCAPTCHA la Politique de confidentialité et les Conditions d’utilisation de Google s’appliquent.
Obtenir un prêt immobilier au meilleur taux ?

En poursuivant votre navigation sans modifier vos paramètres, vous acceptez l'utilisation de cookies susceptibles de réaliser des statistiques de visite. Cliquez ici pour plus d'informations