Bourg argental 42220 programme neuf de 9 logements du t2 au t4, 10 garages et 15 places de parkint

— Bourg-Argental 42220 —
215 000 €
74 m²
3 pièces

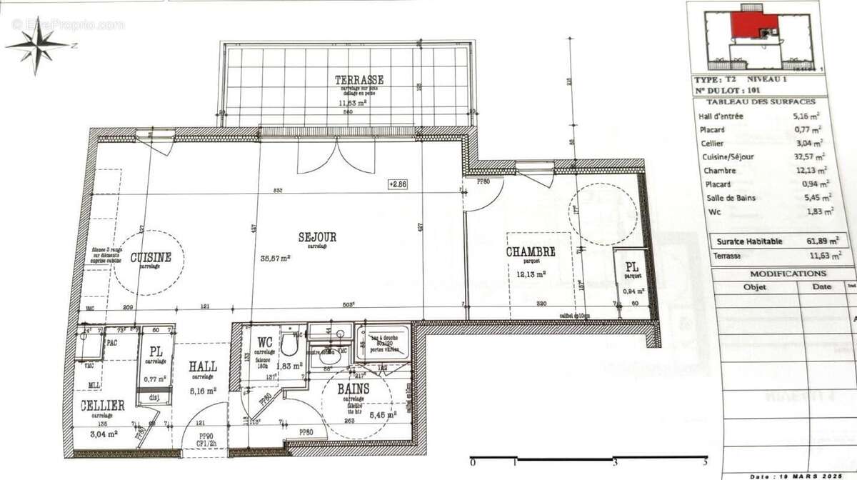
BOURG ARGENTAL 42220 Du NEUF, Immeuble de 9 logements du T2 de 61 m²hab avec balcon au T4 de 105m²hab avec terrasse et jardin. Programme de qualité, à taille humaine. A partir de 170 800 euros Frais de Vente Réduit. Livraison 1er trimestre 2027.
Chauffage plancher chauffage et eau chaude sanitaire par pompe à chaleur individuelle Air/Eau, Ascenseur.
Possibilité d'acquérir en SUS garage et place de stationnement.
Plans sur demande.
Pour visiter et vous accompagner dans votre projet, contactez Laurent PHILIBERT, au [Coordonnées masquées] ou, par courriel à [Coordonnées masquées].
Selon l'article L.561.5 du Code Monétaire et Financier, pour l'organisation de la visite, la présentation d'une pièce d'identité vous sera demandée.
Cette présente annonce a été rédigée sous la responsabilité éditoriale de Laurent PHILIBERT agissant sous le statut d'agent commercial auprès de SAS AGENCE IMMOBILIERE DE ST GENEST MALIFAUX, au capital de 8 000 euros, SIREN 450 3[Coordonnées masquées], RCS Saint Étienne. Carte professionnelle ?Transactions sur immeubles et fonds de commerce' n° CPI 42[Coordonnées masquées]10412 délivrée par la CCI de Lyon Métropole Saint Étienne Roanne. L'agence ne doit recevoir ni détenir d'autres fonds que ceux représentatifs de sa rémunération ou de sa commission.
Assurance responsabilité civile professionnelle par ALLIANZ ACTIF PRO n° de police 54768063. Tous nos conseillers sont des agents mandataires indépendants détenteurs d'une attestation de la CCI
Mandat réf : 3647

Copropriété de 34 lots - dont 9 lots habitation. ().

Charges annuelles : 360 euros.
Laurent PHILIBERT (EI) Agent Commercial - Numéro RSAC : 841171887 - .
Voir plus

Référence: 3647LRPB
Bien en copropriété. Nombre de lots : 34. Charges de copropriété : 30 €.
Honoraires à la charge du vendeur.

Prêt immobilier

Vous souhaitez connaître votre capacité d’emprunt et trouver le meilleur crédit immobilier ?
Réaliser une simulation gratuite

Appartement à BOURG-ARGENTAL
Appartement à BOURG-ARGENTAL
Appartement à BOURG-ARGENTAL
Appartement à BOURG-ARGENTAL
Ce site est protégé par reCAPTCHA la Politique de confidentialité et les Conditions d’utilisation de Google s’appliquent.
Obtenir un prêt immobilier au meilleur taux ?

En poursuivant votre navigation sans modifier vos paramètres, vous acceptez l'utilisation de cookies susceptibles de réaliser des statistiques de visite. Cliquez ici pour plus d'informations