Bénéficiez des services de nos partenaires locaux soigneusement sélectionnés
pour vous accompagner dans votre parcours d'achat immobilier

L'optimal du 11éme

— Paris-11e 75011 —
349 000 €
34 m²
2 pièces
ascenseur

Nos partenaires locaux
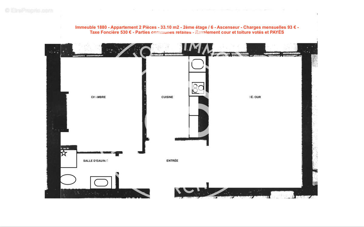
L’optimal – RUE SERVAN - Nous vous proposons un appartement de 2 pièces à la vue dégagée situé au 2e étage (sur un total de 6 étages) avec ascenseur, dans un immeuble en pierre de Paris, construit en 1880, et parfaitement entretenu.

D’une superficie d’environ 34 m2 (33.88 m2) dont 33.10 en loi Carrez et ses 2.60 m d’hauteur sous plafond, cet appartement lumineux et sur rue calme et végétale séduira ceux qui choisiront de s’y installer.

Son emplacement central dans le 11e arrondissement, à proximité de l’Atelier des Lumières, du square Gardette, des théâtres et de nombreux commerces de proximité, vous garantit un quotidien agréable et dynamique. Vous serez également à moins de 5 minutes à pied des stations de métro des lignes 3, 2 et 9. Plusieurs lignes de bus (61, 69, 56 et 73) se trouvent à seulement 300 mètres, et l’accès aux pistes cyclables est facilité.

Avec sa distribution classique, l’appartement comprend : une entrée, une cuisine indépendante (partiellement ouvrable sur la pièce de vie), une belle pièce à vivre, une chambre et une salle de bains avec WC.

Ce bien bénéficie d’une exposition EST et offre une vue parisienne et ciel relativement dégagée sur les toits. Pour votre confort, le chauffage et l’eau chaude sont individuels et électriques, et l’appartement dispose de quatre grandes fenêtres à double vitrage.

À noter : Travaux votés et à la charge des propriétaires (ravalement sur cour + toiture)
Parties communes refaites en 2024.

Contactez-nous dès maintenant pour organiser une visite et envisagez de faire de cet appartement votre chez-vous.

Copropriété : Nombre de lots : 26. Budget prévisionnel (dépenses courantes) : 1120 euros/an – 93 €/mois. Pas de procédure en cours – le syndicat des copropriétaires ne fait pas l'objet d'une procédure citée à l'article L. 721-1 du Code de la construction et de l'habitation. Informations sur la performance énergétique de ce bien : (classe ÉNERGIE F indice 359 et classe CLIMAT B indice 11 – 960 € à 1330 €/an. Taxe foncière : 530 euros/an. Prix : 349.000 € honoraires d'agence compris.

Les informations sur les risques auxquels ce bien est exposé sont disponibles sur le site Géorisques : georisques.gouv.
Voir plus

Référence: 2530
Bien en copropriété. Nombre de lots : 26. Charges de copropriété : 1120 €.
Honoraires à la charge de l'acquéreur.
Barème des honoraires
DPE
A
B
C
D
E
F
G
GES
A
B
C
D
E
F
G

Prêt immobilier

Vous souhaitez connaître votre capacité d’emprunt et trouver le meilleur crédit immobilier ?
Réaliser une simulation gratuite

Appartement à PARIS-11E
Appartement à PARIS-11E
Appartement à PARIS-11E
Appartement à PARIS-11E
Appartement à PARIS-11E
Appartement à PARIS-11E
Appartement à PARIS-11E
Appartement à PARIS-11E
Appartement à PARIS-11E
Appartement à PARIS-11E
Appartement à PARIS-11E
Appartement à PARIS-11E
Appartement à PARIS-11E
Appartement à PARIS-11E
Appartement à PARIS-11E
Ce site est protégé par reCAPTCHA la Politique de confidentialité et les Conditions d’utilisation de Google s’appliquent.
Obtenir un prêt immobilier au meilleur taux ?

En poursuivant votre navigation sans modifier vos paramètres, vous acceptez l'utilisation de cookies susceptibles de réaliser des statistiques de visite. Cliquez ici pour plus d'informations