Bénéficiez des services de nos partenaires locaux soigneusement sélectionnés
pour vous accompagner dans votre parcours d'achat immobilier

Commerce 122m² à nice

— Nice 06000 —
449 000 €
122 m²
accès handicapé

Nos partenaires locaux
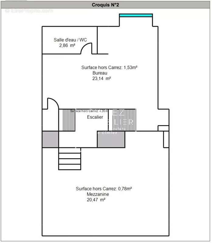
NICE CENTRE VILLE - DUBOUCHAGE: RARE, à proximité du futur Hôtel des Polices et de l'école Rothschild, dans bel immeuble niçois, local commercial de 122 m² avec accès PMR, bénéficiant d'un fort passage. Configuré en duplex, il est composé en RDC d'un plateau de 66 m² avec sanitaires, au 1er niveau un bureau de 24 m² et une mezzanine de 21 m² avec salle de douche et deuxième toilettes.
Facilement accessible, proche toutes commodités, bus, parking Marshall et tramway Durandy.
Activités possibles: Cabinet d'architecte, siège, entrepôt ou magasin d'une entreprise de peinture, vitrerie, revêtements muraux et de sol ou travaux de bâtiment.
Charges annuelles : 2 808 €.

Les honoraires d'agence seront intégralement à la charge du vendeur.
Voir plus

Référence: 4752T

Prêt immobilier

Vous souhaitez connaître votre capacité d’emprunt et trouver le meilleur crédit immobilier ?
Réaliser une simulation gratuite

Commerce à NICE
Commerce à NICE
Commerce à NICE
Commerce à NICE
Commerce à NICE
Ce site est protégé par reCAPTCHA la Politique de confidentialité et les Conditions d’utilisation de Google s’appliquent.
Obtenir un prêt immobilier au meilleur taux ?

En poursuivant votre navigation sans modifier vos paramètres, vous acceptez l'utilisation de cookies susceptibles de réaliser des statistiques de visite. Cliquez ici pour plus d'informations