Secteur chatelet montorgueil ,au 1 er étage 3 piece a rénover

— Paris-2e 75002 —
540 000 €
53 m²
3 pièces

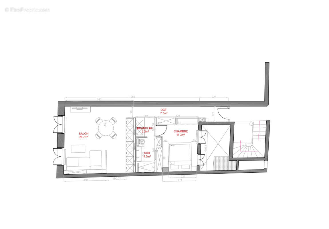
Vente d'un appartement trois pièces à Paris 2ème - Secteur Montorgueil Description du bien Situé dans le 2ème arrondissement de Paris, secteur Montorgueil, à proximité du métro Sentier, cet appartement trois pièces se trouve au premier étage d'un immeuble équipé d'un ascenseur. Disposition et caractéristiques Le bien comprend une entrée, un séjour, deux chambres et une salle de bain. L'appartement bénéficie d'une double exposition sur rue et sur cour. Des travaux sont à prévoir, offrant ainsi une opportunité de personnalisation. Potentiel de restructuration Il est possible de restructurer l'appartement en deux pièces, comprenant un double séjour, une chambre, une salle de bain et une cuisine. Informations complémentaires ?Surface : 53 m² ?Prix de vente : 540 000 euros FAI ?Contact : [Coordonnées masquées] (5.88 % honoraires TTC à la charge de l'acquéreur.) Copropriété de 27 lots ().
Voir plus

Référence: 1163
Honoraires d'agence de 5.88% à la charge de l'acquéreur
Barème des honoraires
DPE
A
B
C
D
E
F
G
GES
A
B
C
D
E
F
G

Prêt immobilier

Vous souhaitez connaître votre capacité d’emprunt et trouver le meilleur crédit immobilier ?
Réaliser une simulation gratuite

Appartement à PARIS-2E
Appartement à PARIS-2E
Appartement à PARIS-2E
Ce site est protégé par reCAPTCHA la Politique de confidentialité et les Conditions d’utilisation de Google s’appliquent.
Obtenir un prêt immobilier au meilleur taux ?

En poursuivant votre navigation sans modifier vos paramètres, vous acceptez l'utilisation de cookies susceptibles de réaliser des statistiques de visite. Cliquez ici pour plus d'informations