Bénéficiez des services de nos partenaires locaux soigneusement sélectionnés
pour vous accompagner dans votre parcours d'achat immobilier

Studio + terrasse capitole toulouse

— Toulouse 31000 —
127 500 €
26 m²
2 pièces
balcon/terrasse

Nos partenaires locaux
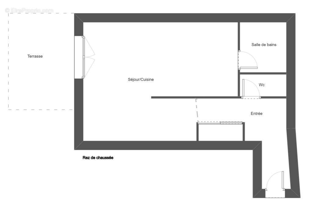
Au cœur de TOULOUSE; rue Pargaminières reliant le Capitole à la Place Saint PIERRE et les quais de GARONNE.

Petite copropriété que nous administrons en tant que syndic.

Appartement donnant sur une terrasse privative de 9 m2. Unique accès depuis l'appartement.

T1 bis et sa cuisine séparée, pièce principale de 17 m2, salle de bain et toilette séparées.

Petite modernisation à prévoir à moyen terme;

DPE actuel E :

Energie Primaire 293 / Emission GES 9

DPE à partir de janvier 2026 : D

Energie Primaire 242 / Emission GES 9

Charges : 969 € dont 592 € pour le locataire.

Locataire en place depuis 2014. Fin du bail en cours octobre 2026. (Locataire sur le départ, cherche appartement plus grand)

Romain CARLOT Conseillers transactions ACI CAZES immobilier [Coordonnées masquées] / [Coordonnées masquées]
Voir plus

Référence: 1836
Bien en copropriété. Nombre de lots : 14. Charges de copropriété : 969 €.
Honoraires d'agence de 6.25% à la charge de l'acquéreur
Barème des honoraires
DPE
A
B
C
D
E
F
G
GES
A
B
C
D
E
F
G

Prêt immobilier

Vous souhaitez connaître votre capacité d’emprunt et trouver le meilleur crédit immobilier ?
Réaliser une simulation gratuite

Appartement à TOULOUSE
Appartement à TOULOUSE
Appartement à TOULOUSE
Appartement à TOULOUSE
Appartement à TOULOUSE
Appartement à TOULOUSE
Ce site est protégé par reCAPTCHA la Politique de confidentialité et les Conditions d’utilisation de Google s’appliquent.
Obtenir un prêt immobilier au meilleur taux ?

En poursuivant votre navigation sans modifier vos paramètres, vous acceptez l'utilisation de cookies susceptibles de réaliser des statistiques de visite. Cliquez ici pour plus d'informations